**Standout Features:**
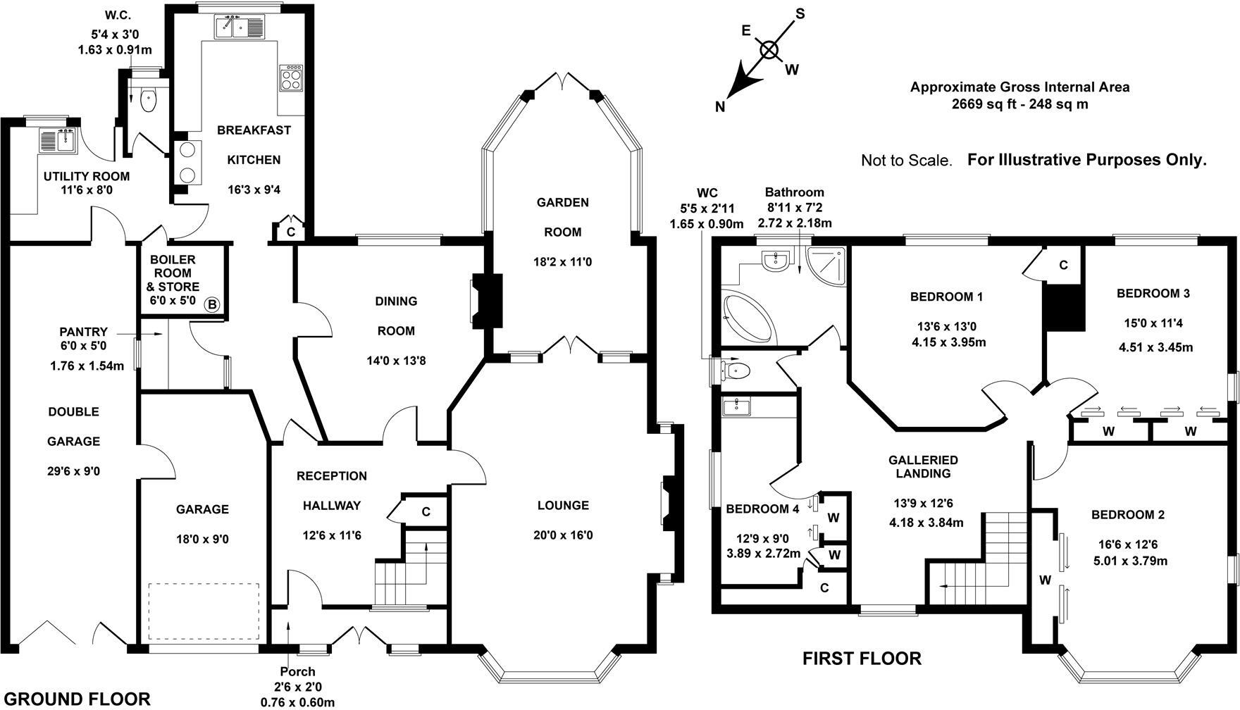
- Large detached 4-bedroom home with 2669 sq ft of space
- Original 1930s character elements, including an inglenook fireplace and leaded windows
- Expansive, beautifully landscaped south-easterly facing garden for privacy
- Generous driveway with off-street parking for multiple vehicles and double garage
- Situated in Radcliffe-on-Trent, an affluent, family-friendly neighborhood with excellent schools nearby
**Concerns:**
- Original features may require maintenance and updates
- Potentially high council tax in the area
Nestled in the desirable village of Radcliffe-on-Trent, this charming 4-bedroom detached house exudes classic 1930s character with its original features, including an inviting inglenook fireplace and beautifully decorated leaded light windows. Perfect for families, the generous layout includes spacious reception areas flowing into a lovely garden room, while the 4 double bedrooms offer ample comfort and storage. The impressive southerly facing rear garden provides a peaceful retreat, enhanced by mature shrubbery, rockeries, and expansive patio areas for outdoor gatherings.
With local schools rated "Good" and vibrant amenities within walking distance, this home provides an excellent opportunity for families seeking community, tranquility, and space. However, the beautiful original features may require some upkeep to fully realize the home's potential. Positioned competitively at £580,000, this property reflects a unique blend of classic charm and practical living, making it a rare find in the market. Act quickly to seize this opportunity before it’s gone!
4 bedroom detached house for sale in Cliff Drive, Radcliffe-On-Trent, Nottingham, NG12 — £650,000 • 4 bed • 2 bath • 2438 ft²
4 bedroom detached house for sale in Grandfield Crescent, Radcliffe-On-Trent, Nottingham, NG12 — £650,000 • 4 bed • 1 bath • 2152 ft²
4 bedroom semi-detached house for sale in Cropwell Road, Radcliffe, NG12 — £500,000 • 4 bed • 2 bath • 1495 ft²
4 bedroom detached house for sale in Radcliffe Road, West Bridgford, Nottinghamshire, NG2 5HD, NG2 — £500,000 • 4 bed • 1 bath • 1791 ft²
4 bedroom detached house for sale in Bingham Road, Radcliffe-on-Trent, NG12 — £850,000 • 4 bed • 4 bath • 2497 ft²
5 bedroom detached house for sale in Valley Road, Radcliffe-On-Trent, Nottinghamshire, NG12 1BB, NG12 — £575,000 • 5 bed • 3 bath • 2724 ft²






























































































































































































































































































































































































































