Family-friendly four-bed with garage, garden and excellent commuter links.
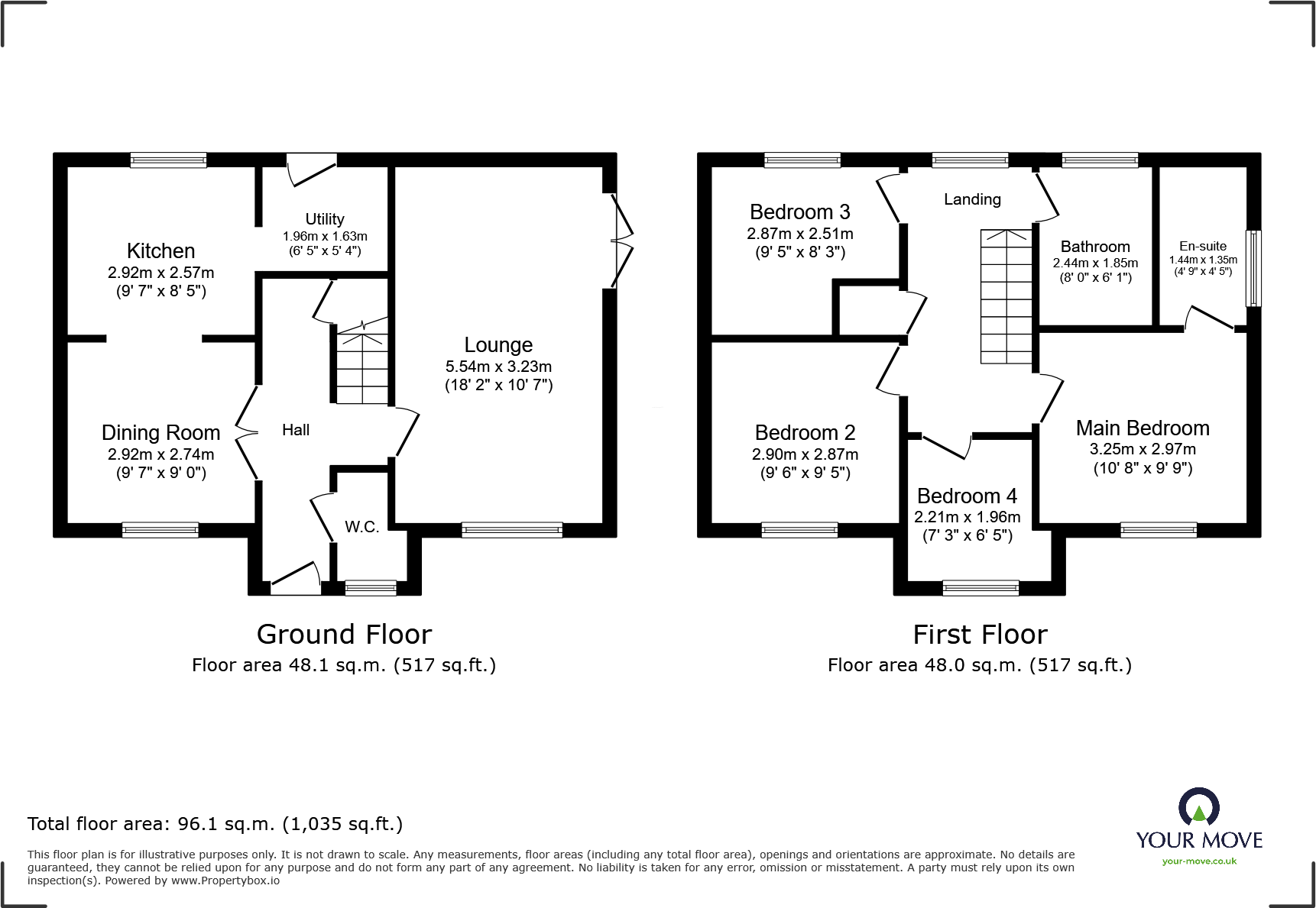
- Detached four-bedroom house with en-suite to the master
- Two reception rooms; lounge with French doors to garden
- Kitchen with adjoining utility room and garden access
- Driveway for two cars plus single garage
- Decent enclosed rear garden, private and low maintenance
- Built early 2000s; double glazing, gas central heating
- Crime level above average in the immediate area
- Nearby primary school rated 'Requires improvement' (others Good)
A well-presented four-bedroom detached house in Willow Gardens offering practical family living close to major commuter routes. The ground floor has two reception rooms — a formal dining room plus a lounge with French doors to an enclosed rear garden — and a fitted kitchen with a linked utility room. Upstairs the principal bedroom includes an en-suite shower; three further bedrooms and a family bathroom complete the sleeping accommodation.
Outside there is off-street parking for two vehicles, a single garage and a decent enclosed rear garden that will suit children and weekend pottering. Built in the early 2000s, the home benefits from double glazing, mains gas central heating and a straightforward, low-maintenance brick exterior. Broadband and mobile signal are strong, and the property sits within easy reach of the M1 for commuters.
Buyers should note some local factors: crime levels in the immediate area are reported above average, and a nearby primary school has an Ofsted rating of 'Requires improvement' (several other local schools are rated Good). The property is offered freehold with council tax band D. Overall this is a sensible family purchase or first-time-buyer step-up with good transport links and practical living spaces, though buyers should assess local safety and schooling to their own satisfaction.
4 bedroom detached house for sale in Grindleford Grange, Mansfield, Nottinghamshire, NG18 3FX, NG18 — £340,000 • 4 bed • 3 bath • 1208 ft²
4 bedroom detached house for sale in Grindleford Grange, Mansfield, NG18 — £340,000 • 4 bed • 2 bath • 1237 ft²
4 bedroom detached house for sale in Bryony Way, Mansfield Woodhouse, Mansfield, NG19 — £385,000 • 4 bed • 2 bath • 2068 ft²
4 bedroom detached house for sale in Sutton Road, Huthwaite, Nottinghamshire, NG17 — £210,000 • 4 bed • 1 bath • 1414 ft²
4 bedroom detached house for sale in Millstone Close, Mansfield, Nottinghamshire, NG18 — £312,500 • 4 bed • 1 bath • 885 ft²
4 bedroom detached house for sale in Grindleford Grange, Mansfield, NG18 — £295,000 • 4 bed • 2 bath • 1038 ft²






























































































































