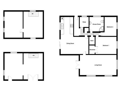
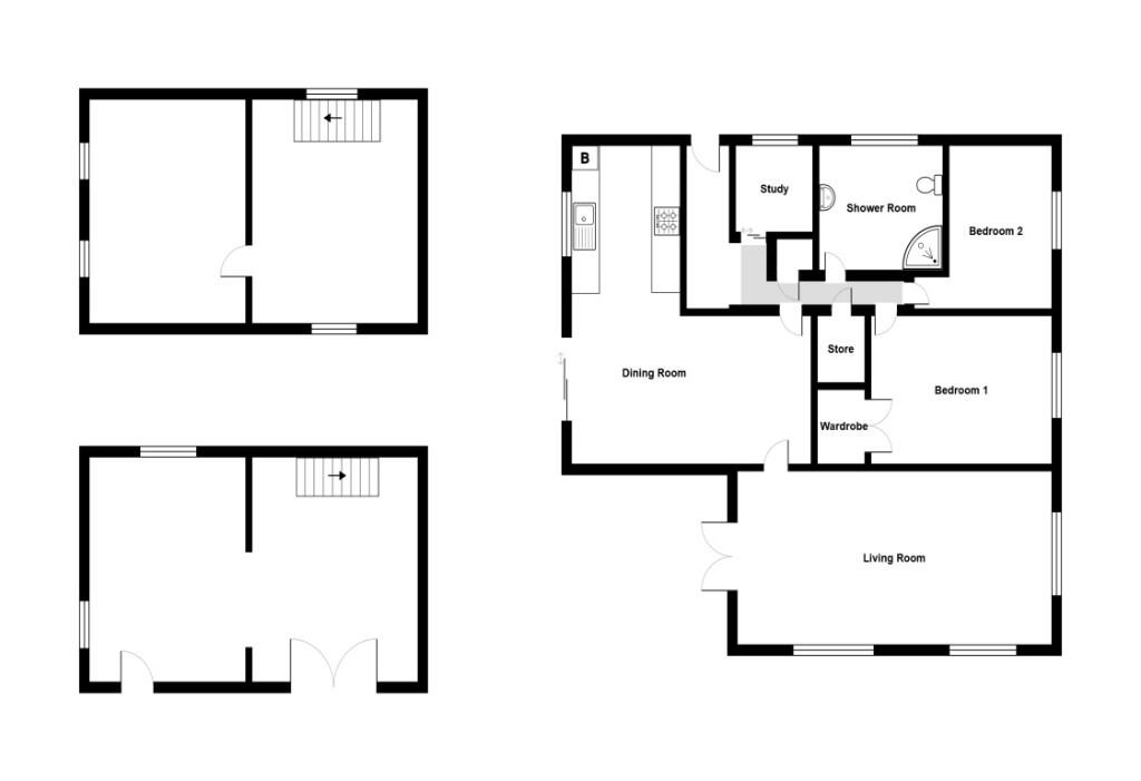
**Standout Features:**
- Two-bedroom detached true bungalow
- Nestled on approximately 0.75 acres of land with a detached barn
- Bright and spacious living room with dual aspect windows
- Located close to the village of Tarleton, offering local amenities
- Potential for development opportunities (subject to consents)
**Concerns:**
- Requires modernization
- Broadband speeds are very slow
- Oil heating system may require updates
**Summary:**
Discover the peaceful charm of this two-bedroom detached true bungalow, set in a spacious 0.75-acre plot just a stone's throw from the vibrant village of Tarleton. This property offers a wonderful mix of cozy single-story living and expansive outdoor space. The bright, dual-aspect living room provides a perfect place to unwind and enjoy the serene countryside views. With a detached barn on-site, there’s exciting potential for development or additional storage, making this a versatile opportunity for individuals considering future enhancements.
Despite needing modernization, this bungalow offers a blank canvas for buyers to create their dream home in a tranquil rural setting. With local schools rated 'Good' by Ofsted and essential amenities within reach, it’s perfect for families looking for comfort and accessibility. Note, however, that the oil heating and slow broadband may require attention for optimal convenience. Don’t miss out on this unique property with significant potential—opportunities like this don’t last long!
2 bedroom detached bungalow for sale in The Walk, Hesketh Bank, Preston, PR4 — £299,000 • 2 bed • 1 bath • 663 ft²
4 bedroom detached bungalow for sale in Anchorage Avenue, Hundred End, Preston, PR4 — £580,000 • 4 bed • 3 bath • 2033 ft²
2 bedroom bungalow for sale in Bent Lane, Leyland, Lancashire, PR25 — £270,000 • 2 bed • 1 bath • 1306 ft²
3 bedroom detached bungalow for sale in Hesketh Lane, Tarleton, Preston, PR4 — £325,000 • 3 bed • 1 bath • 1029 ft²
2 bedroom detached bungalow for sale in Merlecrest Drive, Tarleton, Preston, PR4 — £239,950 • 2 bed • 1 bath • 804 ft²
2 bedroom detached house for sale in Blythe Lane, Lathom, L40 — £650,000 • 2 bed • 1 bath • 2135 ft²


























































