GL8 8NT - 3 bedroom detached house for sale in Star Lane, Avening, Te…

View on Property Piper

3 bedroom detached house for sale in Star Lane, Avening, Tetbury, GL8

Summary - 5 STAR LANE AVENING TETBURY GL8 8NT

3 bed 2 bath Detached

**Standout Features:**
- Charming 3-bedroom detached period cottage
- Attractive landscaped gardens with terrace
- Spacious eat-in kitchen/dining room with vaulted ceiling
- Studio/home office for versatile use
- Off-street parking for several cars
- Beautiful countryside views
- Chain-free sale for easy transaction
- Conveniently located in the sought-after village of Avening

Nestled in the picturesque village of Avening, Lavender Cottage is an inviting three-bedroom detached home that seamlessly blends charming Cotswold architecture with modern living. This beautifully maintained property features a spacious eat-in kitchen/dining room with a vaulted ceiling, a cozy sitting room adorned with a wood-burning stove, and a delightful studio/home office on the upper floor. With generous living spaces spread across three levels, including a substantial barrel-vaulted cellar, this home offers both comfort and potential, perfect for families or savvy investors.

The landscaped garden, featuring both a lawn and patio area, presents lovely countryside views, making it an ideal setting for outdoor gatherings or quiet evenings. The property boasts ample off-street parking for up to three vehicles and is conveniently located near local schools, shops, and leisure facilities, all contributing to a family-friendly environment. Although some photographs were taken while the property was occupied, the home is now vacant and ready for its new owners. If you’re seeking a charming rural retreat that offers both tranquility and accessibility, don’t miss this unique opportunity. Properties like this don’t stay on the market for long!

Property Details

Brochure Descriptions

Image Descriptions

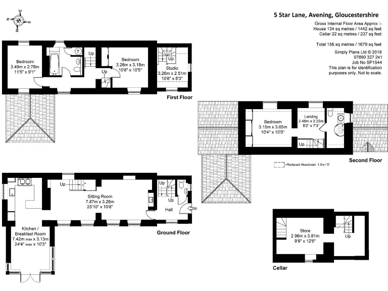
Floorplan Description

Rooms

Textual Property Features

Detected Visual Features

EPC Details

Nearby Schools

Nearest Bars And Restaurants

,,,,}

Nearest General Shops

,,}

Nearest Grocery shops

,,}

Nearest Supermarkets

,,}

Nearest Religious buildings

,,}

Nearest Medical buildings

,,,}

Nearest Leisure Facilities

,,,,}

Nearest Tourist attractions

,,}

Nearest Train stations

,,,,}

Nearest Bus stations and stops

,,,,}

Nearest Hotels

,,}

Tags

Local Market Stats

AirBnB Data

Similar Properties

Meta

High Res Images

Compatible Images

Low res Images

Thumbnails

Raw Images

High Res Floorplan Images

Compatible Floorplan Images

Low res Floorplan Images

FloorplanImages Thumbnail

Raw Floorplan Images