Spacious new three-bedroom home with garden and parking near the seafront.
New-build luxury townhouse, three bedrooms across three floors
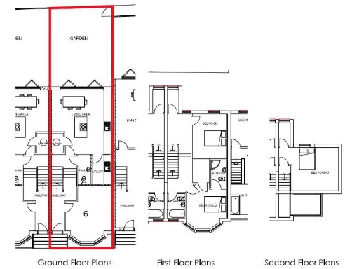
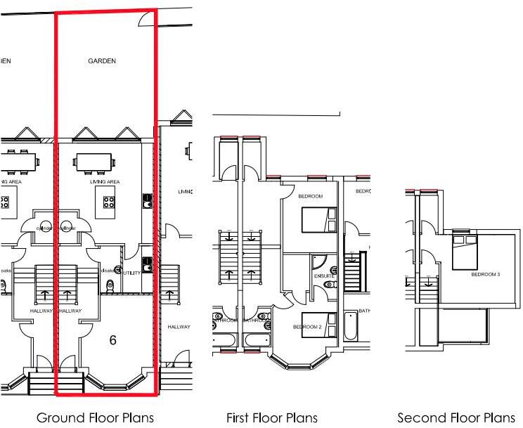
A rare collection of six new-build town houses positioned just off Southsea seafront, this three-bedroom, three-storey home combines contemporary design with practical family living. The ground floor offers a large open-plan kitchen/family room with quality fitted appliances, island workstation and bi-fold doors leading to a landscaped rear garden. The master bedroom includes an en-suite and dressing/study area. Energy-efficient features include double glazing, gas condensing central heating and LED lighting.
The property totals approximately 2,013 sq ft across three floors, with useful attic space and off-street parking. The postcode sits in a very affluent, low-crime neighbourhood with fast broadband and excellent mobile signal; local schools range from good state primaries to outstanding secondary options. Landscaping, parking and a finished specification are part of the package, and a viewing is available now.
Important practical points: this is a new build due for completion in Summer 2025, so purchase is effectively off-plan. The development is one of six homes close to an Eastern Parade conservation area and seafront; buyers should allow for typical new-build snagging and finishing before move-in. Tenure is freehold and the home benefits from modern warranties and an incentive package offered with purchase.
3 bedroom end of terrace house for sale in Rose Garden Walk, Southsea, PO4 — £825,000 • 3 bed • 2 bath • 2013 ft²
4 bedroom end of terrace house for sale in Rose Garden Walk, Southsea, PO4 — £950,000 • 4 bed • 3 bath • 2013 ft²
4 bedroom terraced house for sale in Rose Garden Walk, Southsea, PO4 — £875,000 • 4 bed • 3 bath • 2013 ft²
4 bedroom terraced house for sale in Rose Garden Walk, Southsea, PO4 — £925,000 • 4 bed • 3 bath • 2013 ft²
4 bedroom terraced house for sale in Rose Garden Walk, Southsea, PO4 — £875,000 • 4 bed • 3 bath • 2013 ft²
3 bedroom terraced house for sale in Woodcraft, Carpenter Close, Southsea, PO4 — £399,995 • 3 bed • 2 bath • 1130 ft²


















































