Deceptively spacious four-bedroom home with large garage and low-maintenance patio garden.
Extended, newly renovated four-bedroom semi-detached house
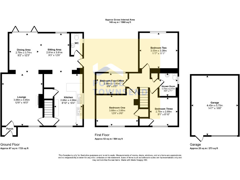
This well-presented four-bedroom semi-detached house offers modernised, flexible family living across an extended ground floor and comfortable first floor. The bright lounge opens into a dining/sitting extension with panoramic bi-fold doors that create a strong indoor–outdoor flow onto a split-level patio garden designed for alfresco dining and low-maintenance living. A practical fitted kitchen, ground-floor WC and contemporary shower room complete the accommodation.
Practical advantages include a large garage with power and anti-slip flooring, a resin driveway with off-street parking for multiple vehicles, full CCTV and a two-way voice doorbell. The property has been newly renovated with quality finishes such as Karndean LVT flooring and integrated kitchen appliances, making it ready to move into with minimal immediate work required. Freehold tenure and a low Council Tax Band B help running costs.
Notable considerations: heating is provided by electric room heaters rather than a mains gas central heating system, and there is a single shower room serving four bedrooms. Double glazing was installed before 2002. A Local Occupancy Clause applies to the property and should be reviewed before purchase. Overall, this home suits families or commuters seeking a low-maintenance, well-located base close to Milnthorpe amenities and good primary schools.
4 bedroom semi-detached house for sale in Summerville Road, Milnthorpe, Cumbria, LA7 — £285,000 • 4 bed • 2 bath • 1386 ft²
4 bedroom semi-detached house for sale in Firs Close, Milnthorpe, LA7 — £260,000 • 4 bed • 1 bath • 993 ft²
3 bedroom semi-detached house for sale in Kirkhead, Milnthorpe, LA7 — £225,000 • 3 bed • 2 bath • 1038 ft²
3 bedroom semi-detached house for sale in 1 Dallam View, Milnthorpe, Cumbria, LA7 7QX, LA7 — £285,000 • 3 bed • 1 bath • 1070 ft²
3 bedroom semi-detached house for sale in Haverflatts Lane, Milnthorpe, LA7 — £200,000 • 3 bed • 1 bath • 554 ft²
3 bedroom semi-detached house for sale in St Anthonys Close, Milnthorpe, LA7 — £295,000 • 3 bed • 2 bath • 1329 ft²






























































































































































