PO21 4NS - 3 bedroom semidetached house for sale in Church Lane, Pagha…

View on Property Piper

3 bedroom semi-detached house for sale in Church Lane, Pagham, PO21

Summary - 25 CHURCH LANE PAGHAM BOGNOR REGIS PO21 4NS

3 bed 1 bath Semi-Detached

Chain-free 3-bed home with south garden and extension potential near the seafront.
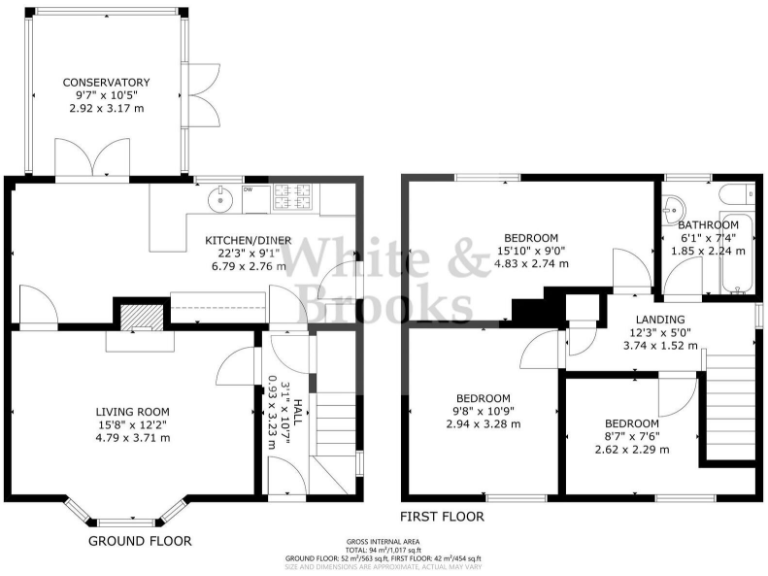
Chain free three-bedroom semi-detached house
Southerly aspect rear garden with mature trees and shrubs
Open-plan kitchen/diner plus conservatory with French doors
Bay-fronted living room; three double bedrooms upstairs
Driveway providing off-street parking for several cars
Potential to extend subject to planning consents
EPC D; cavity walls assumed uninsulated — energy upgrades likely
Single family bathroom; primary school nearby rated Requires Improvement
A well-proportioned three-bedroom semi-detached home in sought-after Pagham, offered chain free and ready for immediate occupation. The ground floor has a bay-fronted living room, generous open-plan kitchen/diner and a light conservatory that opens onto a southerly aspect rear garden — ideal for family life and outdoor entertaining. Off-street parking is provided by a driveway to the front.

Upstairs are three double bedrooms and a single family bathroom; the house totals about 1,017 sq ft and was built in the late 1960s/early 1970s. The plot is a decent size and there’s potential to extend (subject to necessary planning consents) if you need more living space.

Practical details to note: the property has double glazing and mains gas central heating, but the EPC rating is D and cavity walls are assumed to be without insulation, so further energy upgrades could be worthwhile. Broadband speeds are average. Local amenities include shops, pubs, a nature reserve and good secondary schooling nearby; the primary school in the immediate area is currently rated as Requires Improvement.

This house will suit families or buyers seeking a seaside village location with scope to personalise and improve energy performance. Viewings are recommended to appreciate the layout, garden aspect and extension potential.

Property Details

Image Descriptions

Floorplan Description

Rooms

Textual Property Features

Target Audience

AI Tags

Detected Visual Features

EPC Details

Nearby Schools

Nearest Bars And Restaurants

,,,,}

Nearest General Shops

,,}

Nearest Grocery shops

,,}

Nearest Supermarkets

,,}

Nearest Religious buildings

,,}

Nearest Medical buildings

,,,}

Nearest Airports

}

Nearest Leisure Facilities

,,,,}

Nearest Tourist attractions

,,}

Nearest Train stations

,,,,}

Nearest Bus stations and stops

,,,,}

Nearest Hotels

,,}

Tags

Local Market Stats

AirBnB Data

Similar Properties

Meta

High Res Images

Compatible Images

Low res Images

Thumbnails

Raw Images

High Res Floorplan Images

Compatible Floorplan Images

Low res Floorplan Images

FloorplanImages Thumbnail

Raw Floorplan Images