Spectacular river and city outlooks plus two secure parking spaces.
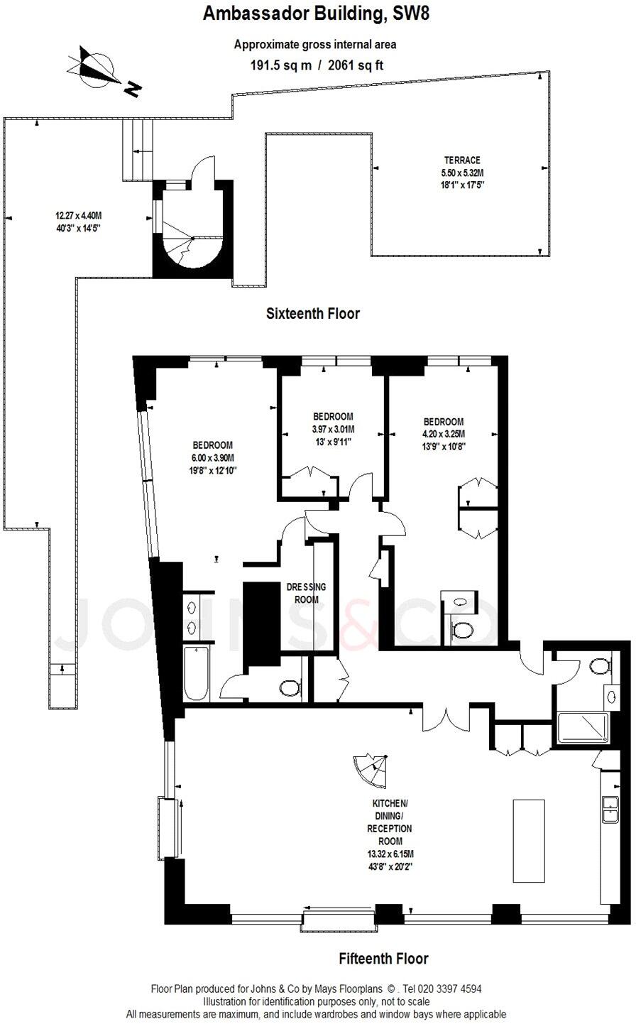
C.2061 sq ft penthouse with private roof terrace and spiral staircase
Set on the 15th floor, this three-bedroom penthouse offers c.2061 sq ft of exceptionally large, light-filled living space. Floor-to-ceiling windows and a spiral staircase lead up to a private roof terrace with sweeping views of the Thames, Canary Wharf, the City and Westminster — ideal for family entertaining and quiet city living.
Residents benefit from two allocated parking spaces, 24-hour concierge and extensive on-site facilities including gyms, an indoor pool, outdoor Jacuzzi and cinema. The property is a new-build leasehold with 986 years remaining, served by a community heating scheme and fast broadband, and sits within easy walking distance of Vauxhall station.
Important running costs are high: the annual service charge is £21,777 and ground rent is £1,100, with very expensive council tax noted. Those costs reflect the full range of premium communal services and facilities but will materially affect ongoing affordability. The apartment is modern and well-maintained but is subject to leasehold terms and significant service charges.
3 bedroom penthouse for sale in Ambassador Building, Embassy Gardens, Nine Elms, SW11 — £3,700,000 • 3 bed • 3 bath • 2056 ft²
3 bedroom penthouse for sale in Capital Building, Embassy Gardens, Nine Elms, London, SW11 — £4,300,000 • 3 bed • 3 bath • 1862 ft²
3 bedroom apartment for sale in Viaduct Gardens, London, SW11 — £3,950,000 • 3 bed • 3 bath • 2029 ft²
3 bedroom apartment for sale in Viaduct Gardens, Vauxhall, SW11 — £1,550,000 • 3 bed • 2 bath • 1097 ft²
3 bedroom flat for sale in Viaduct Gardens, London, SW11 — £1,550,000 • 3 bed • 1 bath
3 bedroom apartment for sale in Capital Building, Embassy Gardens, Nine Elms, SW11, SW8 — £2,250,000 • 3 bed • 2 bath • 1394 ft²






































































































