NP7 0PP - 3 bedroom cottage for sale in Blaenant Cottages, Waenllapri…

View on Property Piper

3 bedroom cottage for sale in Blaenant Cottages, Waenllapria, Llanelly Hill, Abergavenny, NP7

Summary - 1 Blaenant Cottages, Waenllapria, Llanelly Hill NP7 0PP

3 bed 1 bath Cottage

**Standout Features:**
- Semi-detached cottage with scenic countryside views
- Three spacious double bedrooms
- Generous driveway with space for several vehicles and a detached garage
- Beautiful enclosed rear garden with patio area and pond
- Convenient sunroom overlooking the garden
- Located near Brecon Beacons National Park

**Potential Concerns:**
- LPG heating system may require maintenance
- Double glazing installation date is unknown
- Cavity walls with no insulation (assumed)

Nestled in the charming village of Blaenant Cottages, this semi-detached cottage is a perfect retreat for those seeking beautiful walks and tranquil living. Boasting three generously sized double bedrooms, the home features a comfortable lounge, a dining room, and a delightful sunroom that opens to a picturesque enclosed rear garden, ideal for outdoor relaxation or gatherings. A large gated driveway and detached garage provide ample parking and storage options.

With its captivating views and proximity to the scenic Brecon Beacons National Park, this property is a unique opportunity for families or first-time buyers looking to enjoy the serenity of rural life while remaining connected to local amenities. While the property may require attention to its LPG heating and insulation, its excellent location and charm promise potential for modernization and personal touches. Don’t miss out on this inviting home—experience the best of countryside living today!

Property Details

Brochure Descriptions

Image Descriptions

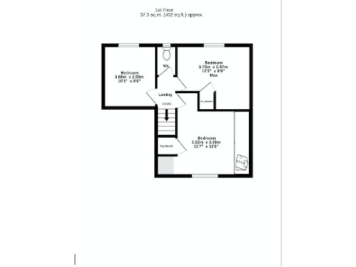
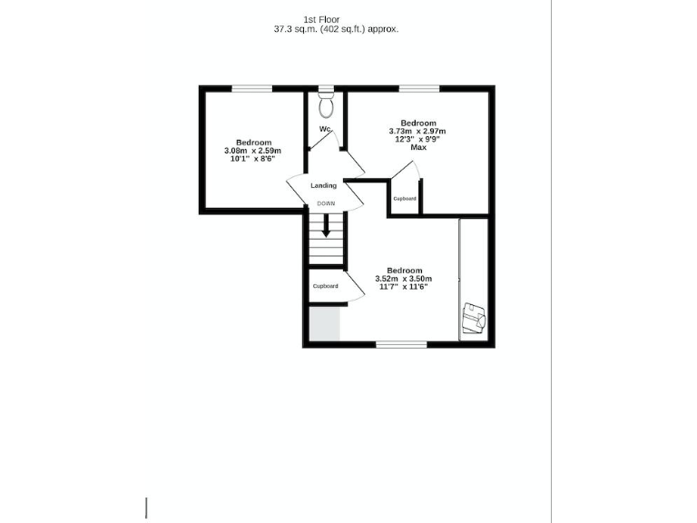
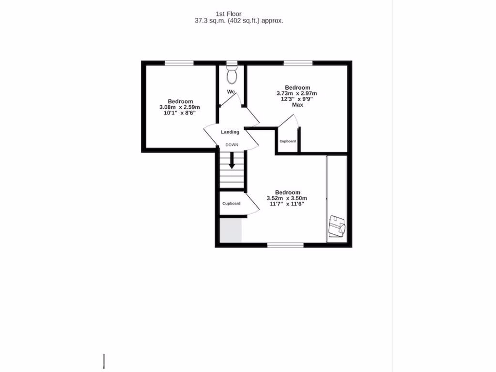
Floorplan Description

Rooms

Textual Property Features

Detected Visual Features

EPC Details

Nearest Bars And Restaurants

,,,,}

Nearest General Shops

,,}

Nearest Grocery shops

,,}

Nearest Supermarkets

,,}

Nearest Religious buildings

,,}

Nearest Medical buildings

,,,}

Nearest Leisure Facilities

,,,,}

Nearest Tourist attractions

,,}

Nearest Train stations

,,,,}

Nearest Bus stations and stops

,,,,}

Nearest Hotels

,,}

Tags

Local Market Stats

Similar Properties

Meta

High Res Images

Compatible Images

Low res Images

Thumbnails

Raw Images

High Res Floorplan Images

Compatible Floorplan Images

Low res Floorplan Images

FloorplanImages Thumbnail

Raw Floorplan Images