Ready-to-move-in house with garage, driveway and easy access to schools and Bentley.
Detached three-bedroom family home in cul-de-sac
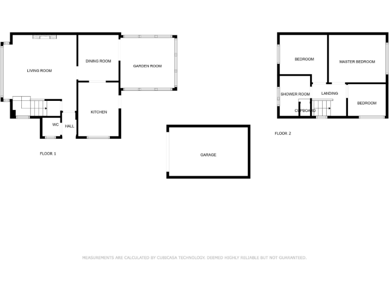
Set on a quiet cul‑de‑sac in a popular Crewe neighbourhood, this three‑bedroom detached home suits growing families looking for practical space and easy access to local schools and Bentley Motors. The living spaces include a lounge, dining room and a garden room that extend daily living and give flexibility for a home office or play area.
The property has been updated and is presented in good order, with double glazing and gas central heating. Outside there is a small, low‑maintenance rear garden, a detached garage and a driveway with parking for multiple cars — useful for families with more than one vehicle.
Practical points to note: the house is relatively modest in size (about 808 sq ft) and has a single shower room and a ground‑floor cloakroom, so some buyers may want more bathroom provision. The plot is small, limiting major extensions without planning. Tenure is freehold and council tax band is low, making running costs favourable.
Overall this is a straightforward, well‑located family home with flexible reception space and solid local amenities nearby. It will suit buyers seeking a ready‑to‑move‑into property with good schools and commuter links rather than those needing extensive living space or a large garden.
3 bedroom detached house for sale in Farmleigh Drive, Crewe, CW1 — £240,000 • 3 bed • 2 bath • 861 ft²
3 bedroom semi-detached house for sale in Verdin Court, Crewe, CW1 — £180,000 • 3 bed • 1 bath • 732 ft²
3 bedroom detached house for sale in Ardleigh Close, Crewe, CW1 — £249,000 • 3 bed • 1 bath • 1056 ft²
3 bedroom detached house for sale in Merlin Way, Crewe, CW1 — £230,000 • 3 bed • 1 bath • 663 ft²
3 bedroom link detached house for sale in Bodnant Close, Crewe, Cheshire, CW1 — £210,000 • 3 bed • 1 bath • 684 ft²
3 bedroom detached house for sale in Becconsall Drive, Crewe, CW1 — £270,000 • 3 bed • 2 bath


























































































