LE3 6QT - 3 bedroom town house for sale in Falconer Crescent, Leicest…

View on Property Piper

3 bedroom town house for sale in Falconer Crescent, Leicester, LE3

Summary - 65 FALCONER CRESCENT LEICESTER LE3 6QT

3 bed 2 bath Town House

**Standout Features:**
- Immaculately presented, extended three-bedroom townhouse.
- Spacious kitchen/diner with modern amenities and breakfast bar.
- Lounge with natural light and easy access to a utility room and conservatory.
- Low-maintenance, fenced rear garden with decked seating area.
- Convenient location within the residential area of New Parks.

**Concerns:**
- Above-average crime rate.
- Located in a deprived area with potential maintenance concerns.

**Summary Description:**
Discover this beautifully extended three-bedroom townhouse in New Parks, ideal for families or first-time buyers seeking modern comfort. Offering an inviting entrance hall that leads to a bright lounge and an expansive kitchen/diner perfect for family gatherings, this home boasts excellent internal condition. Enjoy evenings in the conservatory or the low-maintenance town garden, designed for relaxation and outdoor entertaining.

Upstairs, you’ll find three well-proportioned bedrooms and a family bathroom with contemporary finishes. Plus, the nearby schools, including those with Outstanding ratings, make this an appealing choice for families. While the area does experience above-average crime and faces some socioeconomic challenges, the property presents an exciting opportunity for personalization and future flexibility. Given its excellent condition and thoughtful layout, this townhouse won't stay on the market long—seize this chance to create your forever home!

Property Details

Brochure Descriptions

Image Descriptions

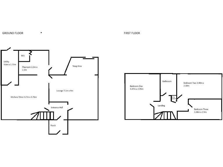
Rooms

Textual Property Features

Detected Visual Features

Nearby Schools

Nearest Bars And Restaurants

,,,,}

Nearest General Shops

,,}

Nearest Grocery shops

,,}

Nearest Supermarkets

,,}

Nearest Religious buildings

,,}

Nearest Medical buildings

,,,}

Nearest Airports

,}

Nearest Leisure Facilities

,,,,}

Nearest Tourist attractions

,,}

Nearest Train stations

,,,,}

Nearest Bus stations and stops

,,,,}

Nearest Hotels

,,}

Tags

Local Market Stats

AirBnB Data

Similar Properties

Meta

High Res Images

Compatible Images

Low res Images

Thumbnails

Raw Images

High Res Floorplan Images

Compatible Floorplan Images

Low res Floorplan Images

FloorplanImages Thumbnail

Raw Floorplan Images