FY5 4EJ - 2 bed spacious two bedroom bungalow in Woodley Avenue, FY5…

View on Property Piper

2 bedroom bungalow for sale in Woodley Avenue, Thornton, FY5

Summary - 2 WOODLEY AVENUE THORNTON-CLEVELEYS FY5 4EJ

2 bed 1 bath Bungalow

Single-floor living with garage and low-maintenance west garden.
True two-bedroom single-storey bungalow on generous corner plot
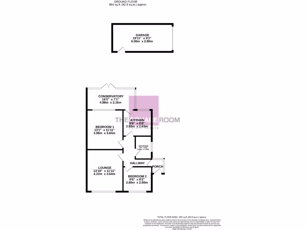
A true two-bedroom bungalow on a generous corner plot, well suited to buyers seeking single-level living in Thornton. The property offers a bright lounge with bay window, a spacious conservatory opening onto a west-facing low-maintenance garden, and off-street parking plus a detached garage. The layout is traditional and easy to maintain, making it attractive for downsizers or those wanting a straightforward move-in home.

The house dates from the late 1960s–1970s and benefits from mains gas central heating, filled cavity walls and double glazing (installation date unknown). The kitchen is fitted with a practical range of units and the main bedroom includes fitted wardrobes. Neutral décor throughout and a modern-feeling lounge reduce immediate updating needs.

Buyers should note a single bathroom serves the home and the property’s age means some components may need attention over time; prospective purchasers are advised to check services and the boiler’s condition. While the bungalow is presented as ready to move into, there is scope to personalise or improve the conservatory, kitchen or bathroom for further value.

Freehold tenure is stated but should be confirmed by a solicitor. Overall this bungalow combines low-maintenance outdoor space, practical parking and easy single-floor living in a popular Thornton location close to shops, schools and transport links.

Property Details

Image Descriptions

Floorplan Description

Rooms

Textual Property Features

Target Audience

AI Tags

Detected Visual Features

EPC Details

Nearby Schools

Nearest Bars And Restaurants

,,,,}

Nearest General Shops

,,}

Nearest Grocery shops

,,}

Nearest Supermarkets

,,}

Nearest Religious buildings

,,}

Nearest Medical buildings

,,,}

Nearest Leisure Facilities

,,,,}

Nearest Tourist attractions

,,}

Nearest Train stations

,,,,}

Nearest Bus stations and stops

,,,,}

Nearest Hotels

,,}

Tags

Local Market Stats

Similar Properties

Meta

High Res Images

Compatible Images

Low res Images

Thumbnails

Raw Images

High Res Floorplan Images

Compatible Floorplan Images

Low res Floorplan Images

FloorplanImages Thumbnail

Raw Floorplan Images