Low-maintenance garden, garage and driveway in a popular suburb.
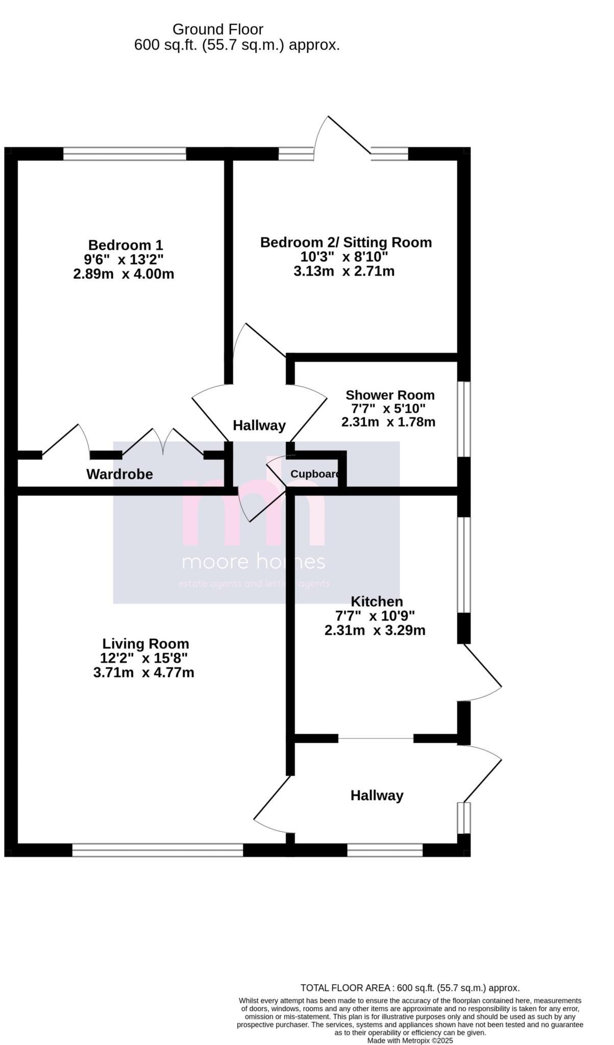
Two double bedrooms, all single-level living
A neatly presented two-bedroom semi-detached bungalow arranged all on one level — ideal for someone looking to downsize without compromising on quality. The light living room centres on a feature fireplace and opens onto a rear corridor; the principal bedroom benefits from built-in wardrobes while the second bedroom has direct access to the west-facing garden.
The kitchen has been modernised and fitted with integrated appliances; a smart shower room completes the accommodation. Practical comforts include a recently replaced gas boiler (installed March 2025), mains gas central heating and UPVC double glazing (installation date unknown).
Outside, a block-paved driveway runs to a detached garage and the garden is landscaped for low maintenance with a westerly aspect for afternoon and evening sun. The plot is a decent size for a bungalow in this popular, well-served suburb close to shops, transport and good-rated schools.
Considerations: living space is average in size (approximately 640 sq ft) and there is a single shower room only. The property dates from the 1950s–1960s era, so buyers should note the age-related aspects and confirm details such as glazing install dates and any hidden maintenance. Ground rent is a small annual charge (£12).
2 bedroom detached bungalow for sale in Coppice Close, Woodley, SK6 — £280,000 • 2 bed • 1 bath • 676 ft²
2 bedroom bungalow for sale in Tarporley Close, Stockport, Greater Manchester, SK3 — £200,000 • 2 bed • 1 bath • 742 ft²
2 bedroom detached bungalow for sale in Camborne Avenue, Macclesfield, SK10 — £320,000 • 2 bed • 1 bath • 558 ft²
2 bedroom detached bungalow for sale in Ripley Avenue, Cheadle Hulme, SK8 — £450,000 • 2 bed • 1 bath • 1080 ft²
2 bedroom semi-detached bungalow for sale in Clay Lane, Handforth, SK9 — £367,500 • 2 bed • 1 bath • 753 ft²
2 bedroom semi-detached bungalow for sale in GLOUCESTER ROAD, Poynton, SK12 1JJ, SK12 — £375,000 • 2 bed • 1 bath • 808 ft²














































