Large, characterful detached home on 1/3 acre near Oulton Broad — scope to modernise.
1/3 acre plot with mature gardens and private aspect
Double garage with loft/loft room plus large car port
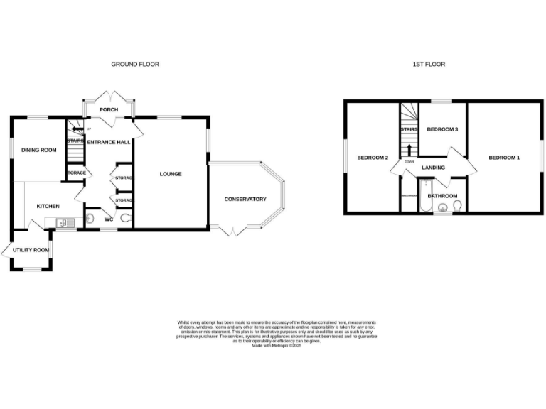
Conservatory, utility room, downstairs WC and three receptions
Three bedrooms, family bathroom; good fitted wardrobes
Timber-frame (1967–75) with partial insulation — may need upgrades
Flood risk flagged — buyers must verify local flood information
Ultrafast broadband (predicted) — excellent for home working
Council Tax Band D; freehold, mains gas central heating
Set on an unusually large plot (circa 1/3 acre sts) in sought-after Broadview Road, Lowood Cottage is a detached Colt-style timber-frame home that will suit families who want space and privacy. The house offers three bedrooms, three reception areas including a conservatory, and generous outdoor space framed by mature trees — ideal for children’s play, gardening or outdoor entertaining.
Practical features include a double garage with an upstairs storage/loft area, a car port, utility room and an easily accessed downstairs WC. The property has modern double glazing and mains gas central heating connected to a boiler and radiators. Broadband speeds are exceptional (ultrafast), supporting home working or streaming without compromise.
Buyers should note the property’s age and construction: timber frame from the late 1960s/early 1970s with assumed partial insulation means some fabric and services may benefit from upgrading. There is also flood-risk information that needs verifying locally before purchase. The house presents clear scope for cosmetic updating and improvement to suit contemporary family living.
For families wanting easy access to Oulton Broad’s amenities, good local schools and direct rail links toward Norwich and London, this home combines a private, leafy setting with strong connectivity. It represents a comfortable, characterful base with potential to modernise and add value.
5 bedroom detached house for sale in Broadview Road, Oulton Broad, NR32 — £900,000 • 5 bed • 3 bath • 2593 ft²
4 bedroom detached house for sale in Cotmer Road, Oulton Broad, NR33 — £475,000 • 4 bed • 2 bath • 1916 ft²
3 bedroom detached house for sale in Private Road, Oulton Broad, NR33 — £450,000 • 3 bed • 1 bath • 1743 ft²
4 bedroom detached house for sale in Chiltern Crescent, Lowestoft, NR32 — £325,000 • 4 bed • 1 bath • 1045 ft²
3 bedroom semi-detached house for sale in Higher Drive, Oulton Broad, Lowestoft, Suffolk, NR32 — £225,000 • 3 bed • 2 bath • 758 ft²
4 bedroom detached house for sale in Lakeland Drive, Lowestoft, NR32 — £475,000 • 4 bed • 2 bath • 2631 ft²


































































