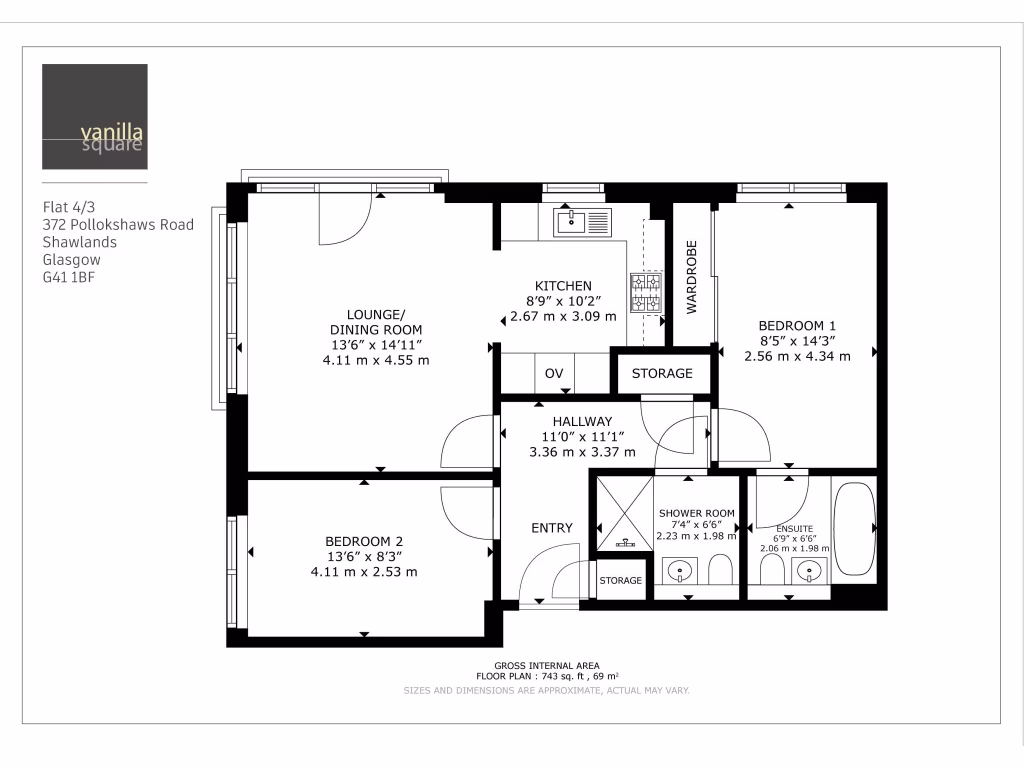
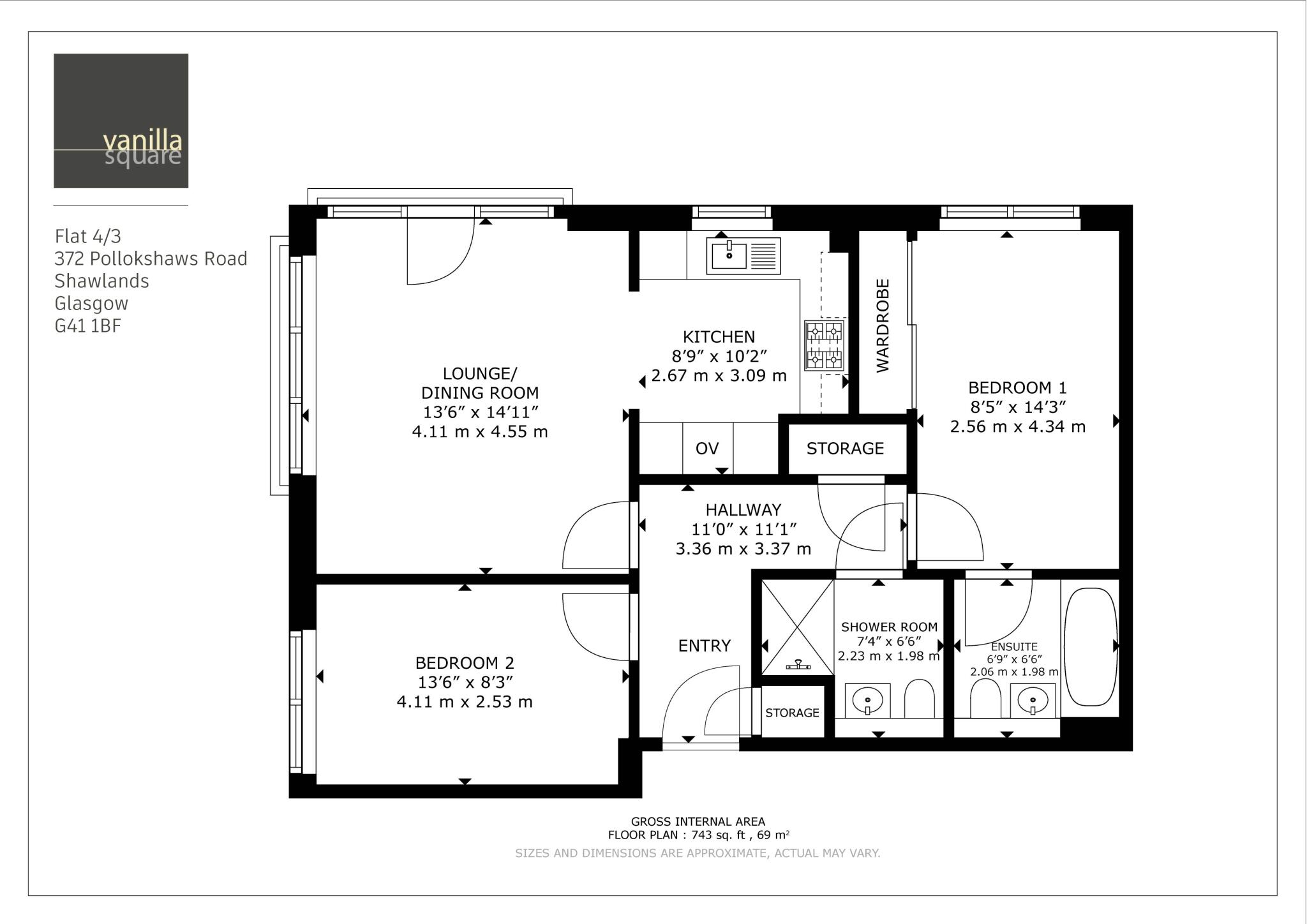
Contemporary two-bedroom home near Shawlands amenities and transport links.
Two double bedrooms and two bathrooms including en-suite principal bedroom
Open-plan lounge and kitchen with dual-aspect windows and balcony
Freehold flat of approximately 743 sq ft; average-sized rooms
Allocated parking space within secure residents’ garage
Gas central heating, double glazing, secure entry and decent storage
EER Band B — reasonably energy-efficient for its age
Wider area classified as very deprived; consider local socio-economic factors
No flood risk; council tax reported as cheap
Set in a modern corner position on Pollokshaws Road, this two-bedroom freehold flat delivers bright, contemporary living across about 743 sq ft. The open-plan lounge and fitted kitchen benefit from dual-aspect windows and a balcony, creating a naturally light reception space suited to everyday life and entertaining. Principal bedroom includes fitted wardrobes and an en-suite; a second double bedroom provides flexible use as a guest room or home office.
Practical features include gas central heating, double glazing, secure entry and an allocated parking space within a residents’ garage. At EER Band B the home is reasonably energy-efficient, and the property’s layout and storage make it well-suited to first-time buyers or professionals seeking a low-maintenance base close to Shawlands amenities and transport links into Glasgow.
Buyers should note the wider area is classified as very deprived, which can affect neighbourhood character and future resale outlook. The flat is an average-sized apartment on a modern development, so buyers wanting period features or large, expansive rooms may prefer other stock. Council tax is described as cheap, and there is no recorded flood risk.
2 bedroom flat for sale in 25 Trefoil Avenue, Flat 5/2, Shawlands Glasgow, G41 3PB, G41 — £179,000 • 2 bed • 2 bath • 797 ft²
2 bedroom apartment for sale in Barrland Street, Glasgow, G41 — £150,000 • 2 bed • 2 bath • 764 ft²
2 bedroom apartment for sale in Pollokshaws Road, Shawlands, G41 — £245,000 • 2 bed • 2 bath • 888 ft²
2 bedroom flat for sale in 45 Riverford Road, Flat 1/1, Shawlands, Glasgow, G43 1RX, G43 — £159,000 • 2 bed • 2 bath • 775 ft²
2 bedroom flat for sale in 18 Durward Court, Flat 3/1, Shawlands, Glasgow, G41 3RZ, G41 — £179,000 • 2 bed • 1 bath • 732 ft²
2 bedroom flat for sale in 29 Barrland Street, Flat 3/5, Pollokshields, Glasgow, G41 1BG, G41 — £159,000 • 2 bed • 2 bath • 797 ft²






























































































