Spacious character house with garage, garden and conversion potential in Alderley Edge.
Victorian semi-detached with period features and high ceilings
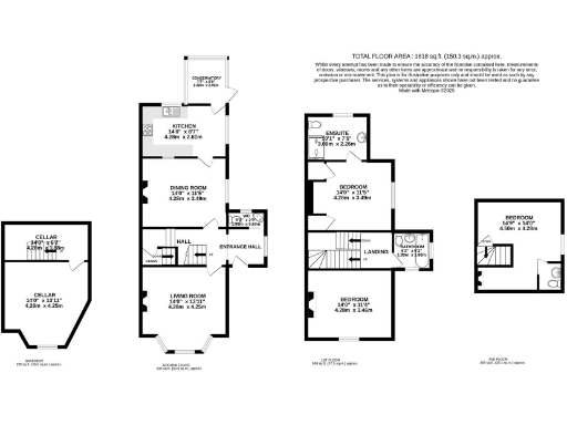
Approx 1,618 sq ft across four floors, three double bedrooms
South-westerly secluded rear garden with stone patio
Paved driveway, detached single garage and attached greenhouse
Lower-ground room spacious — ideal for conversion or storage
Leasehold with 863 years remaining; ground rent £15.13 p.a.
EPC E and solid brick walls — potential insulation/energy upgrades
Council Tax Band F; local recorded crime above average
Set in the centre of Alderley Edge, 36 Trafford Road is a substantial Victorian semi-detached house offering spacious, well-balanced accommodation over four floors. High ceilings, bay windows and period fireplaces give the principal rooms plenty of character, while a conservatory and south-westerly rear garden create light and outdoor space for family life. The layout includes two reception rooms, a fitted kitchen, lower-ground room with conversion potential, and three double bedrooms with two ensuite facilities.
Practical strengths include a paved driveway, detached single garage with greenhouse, and long leasehold (863 years) with a very low ground rent (£15.13 p.a.). The property is chain-free, presented in good order and large at approximately 1,618 sq ft — appealing to growing families who value central village access and local schools within easy reach.
Buyers should note a few material points: the house has an EPC rating of E and is constructed as solid brick (no built-in cavity insulation assumed), so thermal improvements could be considered. Council tax is high (Band F) and local recorded crime is above average for the area. Mobile coverage may be limited indoors with some providers.
Overall, this is a roomy, characterful family house with immediate usability and scope to improve energy performance or convert the lower-ground space. It will suit purchasers seeking a central Alderley Edge home with parking, garden and period charm, and who are comfortable taking on modest retrofit or upgrade work to lower running costs.
3 bedroom terraced house for sale in Clifton Street, Alderley Edge, SK9 — £585,000 • 3 bed • 2 bath • 1128 ft²
3 bedroom semi-detached house for sale in Clifton Street, Alderley Edge, SK9 — £595,000 • 3 bed • 2 bath • 1270 ft²
4 bedroom semi-detached house for sale in Moss Lane, Alderley Edge, SK9 — £1,150,000 • 4 bed • 3 bath • 2200 ft²
5 bedroom semi-detached house for sale in Chapel Road, Alderley Edge, SK9 — £1,300,000 • 5 bed • 3 bath • 2667 ft²
3 bedroom terraced house for sale in South Street, Alderley Edge, SK9 — £475,000 • 3 bed • 1 bath • 1073 ft²
5 bedroom semi-detached house for sale in Victorian Home with Large Garden on Chapel Road, Alderley Edge, SK9 — £1,350,000 • 5 bed • 4 bath • 2744 ft²


































































