Well-connected two-bed starter near shops, schools and transport links.
- Two bedrooms, approximately 750 sq ft (compact footprint)
- Short walk to Brentwood town centre and train station
- Excellent road links: A12, A127 and M25 access
- Small enclosed front garden; modest rear garden size
- Mains gas boiler and radiators; secondary glazing present
- Solid brick walls likely uninsulated — energy upgrades advised
- Freehold tenure and affordable Council Tax Band C
- Suitable for first-time buyers or buy-to-let investors
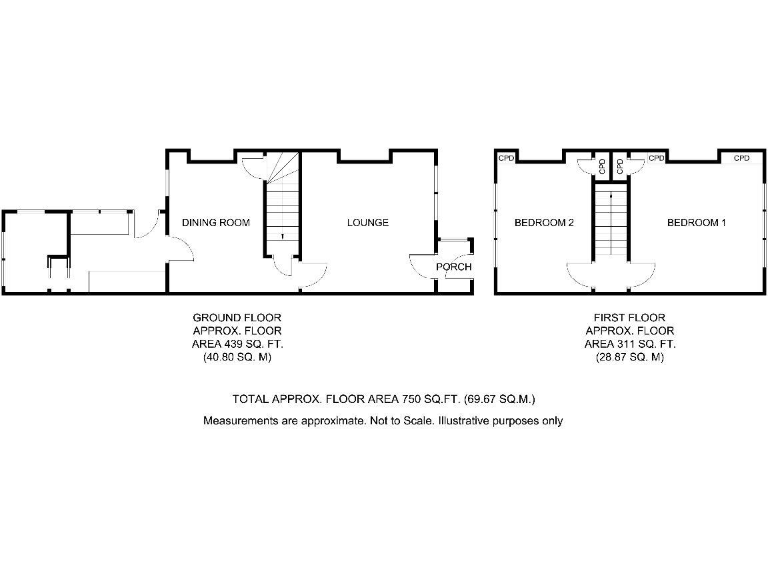
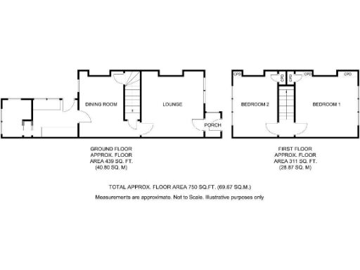
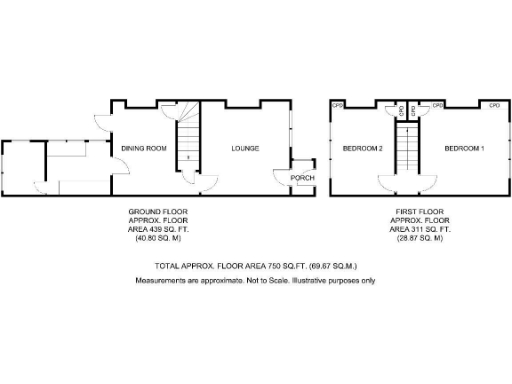
Set in sought-after Warley Mount, this compact two-bedroom mid-terrace offers a practical base for first-time buyers or buy-to-let investors. The layout includes a porch, lounge/dining area and extended rear/kitchen on the ground floor, with two bedrooms and a family bathroom upstairs. At about 750 sq ft the home is well connected — short walk to Brentwood town centre and the train station, with excellent road links to the A12, A127 and M25.
The property presents solid character: a period brick build with a bay window, fireplace and wood flooring in the living room, plus a small enclosed front garden and covered porch. Heating is mains gas with a boiler and radiators; glazing is secondary, and external appearance is tidy and modest.
Notable considerations: the walls are likely uninsulated solid brick (common for its era), and the glazing is secondary rather than modern double glazing, so energy-efficiency improvements would be advisable. The rear garden and overall plot are small, and internal condition/room sizes should be checked in person. Council Tax Band C and freehold tenure are practical advantages for buyers seeking low running costs and ownership simplicity.
Early viewing is recommended for buyers wanting a well-located, affordable starter property or a straightforward rental purchase in a very affluent area with good schools and fast broadband. The home offers clear scope to add value through targeted insulation, glazing upgrades and kitchen/bathroom modernisation.
2 bedroom cottage for sale in Junction Road, Warley, Brentwood, CM14 — £465,500 • 2 bed • 1 bath • 563 ft²
2 bedroom terraced house for sale in Great Eastern Road, Warley, CM14 — £400,000 • 2 bed • 1 bath • 603 ft²
2 bedroom terraced house for sale in Wharf Road, Brentwood, CM14 — £365,000 • 2 bed • 1 bath • 628 ft²
2 bedroom terraced house for sale in Sussex Road, Warley, Brentwood, CM14 — £415,000 • 2 bed • 1 bath • 579 ft²
3 bedroom semi-detached house for sale in Warley Mount, Warley, Brentwood, CM14 — £550,000 • 3 bed • 1 bath • 972 ft²
2 bedroom terraced house for sale in Great Eastern Road, Warley, Brentwood, CM14 — £375,000 • 2 bed • 1 bath • 608 ft²






























































