**Standout Features:**
- Grade II listed Georgian property, rich in character
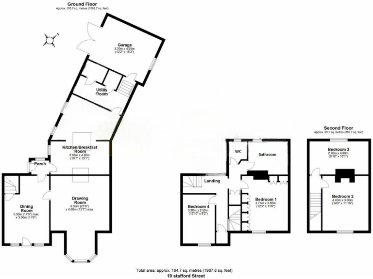
- Versatile living space with four bedrooms and three floors
- Modern kitchen with high-end appliances
- Secret garden, off-road parking, and garage
- Central location in picturesque Audlem village
**Notable Concerns:**
- Grade II listing could present renovation challenges
- Council tax rated as expensive
Nestled in the vibrant village of Audlem, this stunning Grade II listed Georgian home offers an ideal blend of historic charm and modern living. With four spacious bedrooms spread over three beautifully designed floors, this property is perfect for families or discerning buyers looking to revel in a unique heritage. The contemporary kitchen boasts high-end finishes and ample storage, making it a chef’s delight. Your outdoor oasis awaits in the secret garden, ideal for al-fresco dining or peaceful retreats.
Beyond its enchanting interiors, the location provides easy access to boutique shops, cafes, and local amenities, ensuring a lifestyle filled with character and convenience. With the potential for personalized renovations subject to local regulations, this unique home invites you to embrace the charm of Audlem and transform it into your own sanctuary.
Seize this rare opportunity to own a slice of history and enjoy the warmth of community living in one of Cheshire’s most delightful villages. Don't miss out on making this exceptional property your forever home, as opportunities like this are sure to attract keen interest.















































































































































































































