Characterful cottage close to countryside and good schools.
Two bedrooms in a charming period terraced house
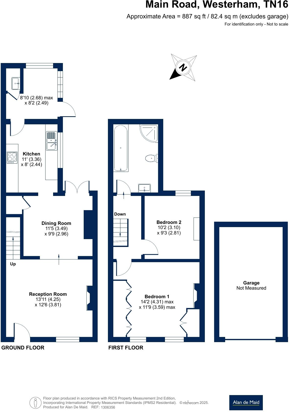
A characterful two-bedroom terraced home set on Main Road in Westerham, offering period detail and a practical layout across two storeys. The property has a cosy through reception, separate kitchen with utility/garden room, and a private rear courtyard with gated access to a garage — useful for storage or one car parking.
Built before 1900 in solid brick, the house retains traditional features and a quaint frontage with decorative planting. At about 887 sq ft the rooms are average to small with relatively low ceilings, making this a comfortable choice for first-time buyers or downsizers who value charm and location over expansive living space.
Buyers should note the property’s solid brick walls are assumed uninsulated and the double glazing install date is unknown; sensible energy-improvement works may be desirable. Chain-free freehold tenure and fast broadband with excellent mobile signal add practical appeal for modern living.
Set in an affluent, semi-rural pocket with good local schools, nearby green belt countryside and reasonable road and rail links, this home suits someone seeking period character with straightforward potential to update and improve energy performance over time.
2 bedroom semi-detached house for sale in London Road, Westerham, TN16 — £455,000 • 2 bed • 1 bath • 910 ft²
2 bedroom semi-detached house for sale in Main Road, Biggin Hill, TN16 — £525,000 • 2 bed • 1 bath • 1100 ft²
3 bedroom terraced house for sale in Hosey Hill, Westerham, TN16 — £449,950 • 3 bed • 2 bath • 940 ft²
2 bedroom terraced house for sale in Farley Nursery, Westerham, TN16 — £475,000 • 2 bed • 1 bath • 862 ft²
3 bedroom terraced house for sale in Quebec Avenue, Westerham, TN16 — £400,000 • 3 bed • 1 bath • 923 ft²
3 bedroom detached house for sale in Hosey Hill, Westerham, TN16 — £895,000 • 3 bed • 2 bath • 1452 ft²


























































































