Convenient town-centre flat with parking and flexible two-bedroom layout.
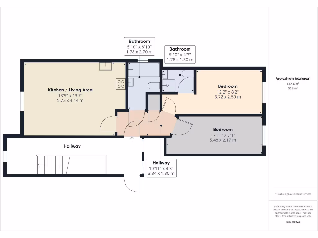
Top-floor two-bedroom flat with open-plan living and modern kitchen
Allocated off-street parking directly in front of the block
EPC C and mains gas boiler with radiators for efficient heating
Leasehold with 107 years remaining; ground rent £326.26/year
Council Tax Band A — very low council tax cost
No pets allowed; not permitted as a holiday let by management
Area records high crime and high levels of deprivation — consider risk
Small overall size (approx. 612 sq ft); compact living spaces
This top-floor two-bedroom flat offers compact, low-maintenance living close to Weston town centre and the railway station. The open-plan living area and modern kitchen make efficient use of the 612 sq ft, and allocated off-street parking is a practical bonus in a central location. With an EPC rating C and mains gas heating, running costs are reasonable for a property of this age.
The layout suits first-time buyers or buy-to-let investors seeking straightforward town-centre accommodation. Two double bedrooms — one with an ensuite — and a main bathroom give genuine flexibility for sharers or a small family. The communal entrance and stair access are typical for purpose-built blocks of the mid-2000s construction period.
Buyers should note material lease and local-area factors: the property is leasehold with 107 years remaining and a ground rent currently £326.26 per year (paid biannually). The wider area registers high crime levels and significant deprivation indices, which may affect resale or rental values. Pets and holiday lets are not permitted under current management rules.
Overall, this is a practical, well-presented flat for someone prioritising proximity to shops, transport links and seaside amenities. It will suit purchasers who value convenience and low upkeep, and who are comfortable with leasehold terms and the local neighbourhood profile.
2 bedroom flat for sale in Gordon Road, Weston-super-Mare, BS23 — £166,500 • 2 bed • 1 bath • 1034 ft²
2 bedroom flat for sale in Whitecross Road, BS23 — £160,000 • 2 bed • 2 bath • 673 ft²
2 bedroom apartment for sale in Ashcombe Road, Weston-Super-Mare, BS23 — £180,000 • 2 bed • 1 bath • 668 ft²
2 bedroom flat for sale in Careys Way, Weston-super-Mare, Somerset, BS24 — £150,000 • 2 bed • 1 bath • 578 ft²
2 bedroom apartment for sale in Wyvern Mews, Churchill Road, Weston-super-Mare, North Somerset, BS23 — £230,000 • 2 bed • 1 bath • 991 ft²
2 bedroom flat for sale in Quantock Road, BS23 — £175,000 • 2 bed • 1 bath • 817 ft²


























































