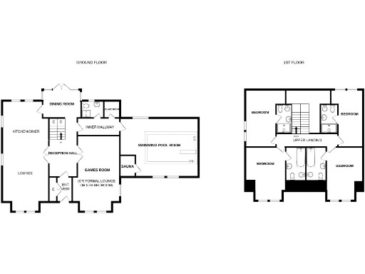
**Standout Features:**
- 4 Double Bedrooms, all with En-Suites
- Expansive Indoor Swimming Pool and Sauna
- Gorgeous Open-Plan Lounge and Kitchen with Cast Iron Fireplace
- Games Room/Optional 5th Bedroom
- Generous 0.6-Acre Garden Grounds
- Extensive Double Glazing and Oil Central Heating
- Secluded Rural Location with Countryside Views
**Summary:**
Discover the idyllic charm of this impressive 4-bedroom detached villa in Allt an Ailein, Clovullin. Set on a generous 0.6-acre plot, this beautifully presented home boasts breathtaking countryside views, ensuring an unparalleled sense of tranquility. Built in 2003 and recently renovated, it features a modern design highlighted by a striking lounge with a cast iron fireplace and an expansive kitchen equipped with high-end appliances. Each of the four double bedrooms includes its own contemporary en-suite, adding to the comfort and convenience of family living.
Relax and unwind in your indoor swimming pool and sauna, or utilize the dual-aspect games room, which provides flexibility for family activities or can easily transform into a fifth bedroom. The picturesque garden, adorned with mature trees, offers a serene escape, while the raised decked terrace is perfect for outdoor entertaining. Although some maintenance concerns such as slow broadband might need addressing, the property’s vast potential makes it an attractive option for families, holiday retreats, or investment opportunities in the premium self-catering market. Don't miss the chance to own this charming Highland escape; arrange a viewing before it's too late!
4 bedroom detached house for sale in 7 Dalnabreck, Dalnabreck, Acharacle, PH36 4JX, PH36 — £580,000 • 4 bed • 5 bath • 3014 ft²
11 bedroom detached house for sale in Grey Corries & Corrieview Lodges, North Road, Spean Bridge, Inverness-Shire, PH34 4DX, PH34 — £598,000 • 11 bed • 8 bath • 4090 ft²
5 bedroom detached house for sale in Dalrieada, Torcastle, Banavie, Fort William, PH33 7PB, PH33 — £500,000 • 5 bed • 6 bath • 2368 ft²
Commercial property for sale in Inverskilavulin Estate, Glenloy, Banavie, Fort William, PH33 — £2,950,000 • 16 bed • 11 bath • 5077 ft²
4 bedroom detached house for sale in Taigh A Ghiuthais, North Connel, Oban, PA37 1QX, PA37 — £490,000 • 4 bed • 3 bath • 1849 ft²
3 bedroom detached house for sale in Cliff Cottage, Lochailort, Inverness-Shire, PH38 4LZ, PH38 — £365,000 • 3 bed • 2 bath • 1184 ft²






























































































































































































































































