Flexible family layout with separate annexe and landscaped garden.
Four double bedrooms including one ensuite
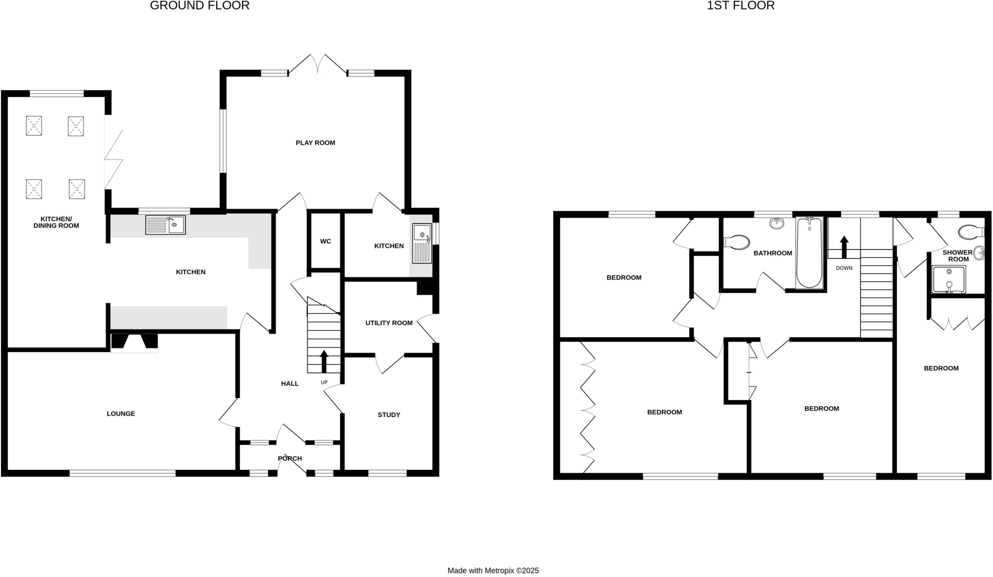
Set on a desirable Kenilworth road, this roomy four-double-bedroom detached home delivers flexible family living and a separate annexe ideal for guests, older relatives or teenagers. The heart of the house is an L-shaped kitchen/diner refitted in 2019 with quartz worktops and integrated appliances, flowing through a garden/dining room with Velux windows and bifold doors to a recently landscaped rear garden.
Ground-floor living is generous and well-zoned: a 20ft lounge with bay window and feature fireplace, separate family room with patio doors, a study and practical utility/personal side entrance. Upstairs are four large double bedrooms (one with ensuite) and a family bathroom with underfloor heating — layout and room sizes suit family life and home-working alike.
Practical positives include extensive driveway parking, freehold tenure, fast broadband, low local crime and proximity to highly rated schools. The property is average overall in size (approx. 1,403 sq ft) but benefits from mature, well-established gardens and a decent plot with multiple outdoor entertaining areas.
A buyer should note there is scope for modernization in parts of the house to personalise finishes and maximise value; some original post-war characteristics remain. Council tax is expensive. Viewing is essential to appreciate the full potential and the annexe arrangement.
4 bedroom semi-detached house for sale in Woodland Road, Kenilworth, CV8 — £490,000 • 4 bed • 1 bath • 1464 ft²
4 bedroom detached house for sale in Leamington Road, Kenilworth, Warwickshire, CV8 — £650,000 • 4 bed • 2 bath • 1837 ft²
4 bedroom detached house for sale in Arborfields Close, Kenilworth, CV8 — £600,000 • 4 bed • 2 bath • 1745 ft²
4 bedroom semi-detached house for sale in Castle Road, Kenilworth, CV8 — £825,000 • 4 bed • 2 bath • 1832 ft²
4 bedroom semi-detached house for sale in Tulip Tree Avenue, Kenilworth, CV8 — £595,000 • 4 bed • 2 bath • 1874 ft²
4 bedroom detached bungalow for sale in Inchbrook Road, Kenilworth, CV8 — £795,000 • 4 bed • 2 bath • 1687 ft²










































































