Spacious duplex penthouse with stunning dock views and portered security, close to ExCeL and Canary Wharf..
Duplex penthouse with panoramic Royal Victoria Dock views
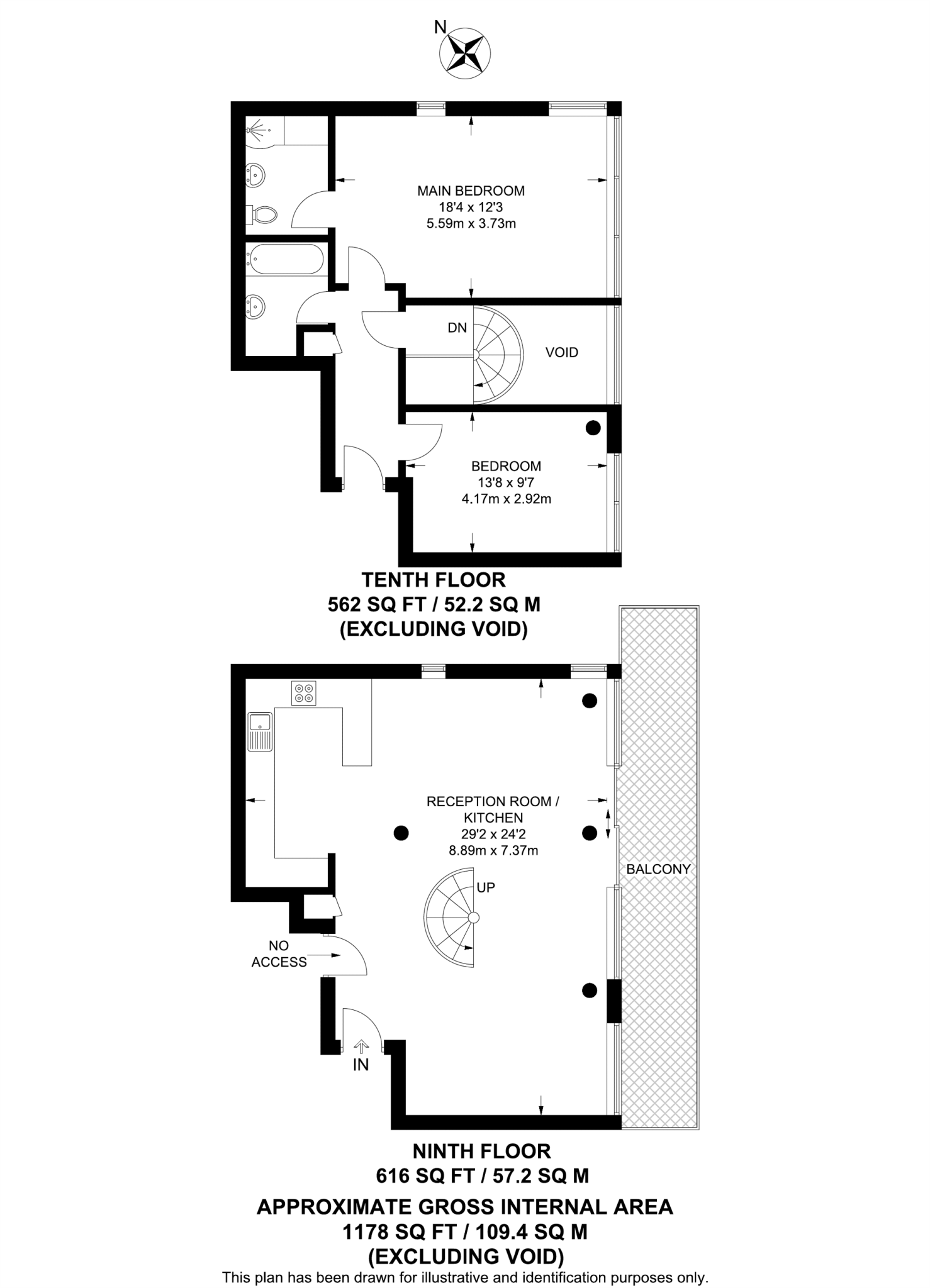
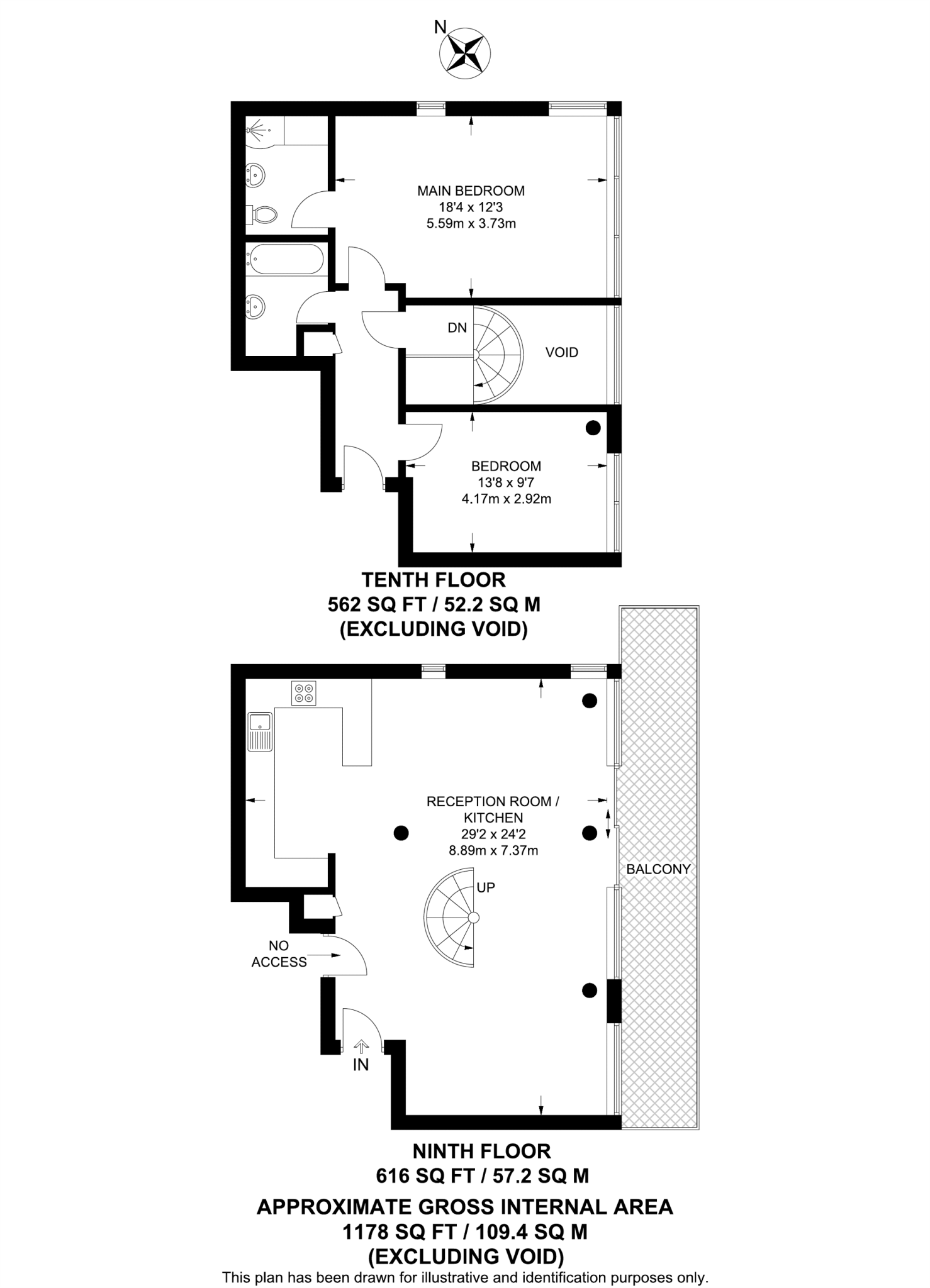
Large 1,178 sq ft layout over two floors, high ceilings
Main bedroom with en suite; second double bedroom
Bright open-plan reception and fully integrated kitchen
Balcony off reception; modern portered development
Leasehold tenure; confirm service charges and lease length
Electric warm-air heating system (no gas central heating)
Spiral staircase may challenge mobility-restricted buyers
Set over two floors, this duplex penthouse occupies 1,178 sq ft and looks directly over Royal Victoria Dock. The reception room is bright and double-height, with large windows, a balcony and a fully integrated open-plan kitchen with breakfast bar — ideal for relaxed entertaining. The main bedroom faces the water and has an en suite shower; a second double bedroom and a separate family bathroom complete the accommodation.
Aegean Apartments is a modern, portered development built around 1996–2002, positioned close to the ExCeL Centre and within easy reach of Canning Town and Canary Wharf by car. Local amenities are plentiful — supermarkets, cafes, gyms and a marina are all nearby — and the area benefits from very low crime and very low flood risk.
Practical details to note: the property is leasehold, heated by an electric warm-air system, and has double glazing with an unknown install date. The building’s communal management and service charges (typical for portered developments) should be confirmed by buyers. The apartment’s multi-storey layout and spiral staircase create a strong visual impact but may be less convenient for mobility-restricted purchasers.
This penthouse suits buyers seeking a stylish riverside home or an investor targeting strong rental demand near Canary Wharf and ExCeL. It offers immediate lifestyle appeal and scope for cosmetic updating to personalise the interiors.
2 bedroom flat for sale in Western Gateway, Royal Docks, London, E16 — £560,000 • 2 bed • 2 bath • 1190 ft²
2 bedroom flat for sale in Western Gateway, London, E16 — £700,000 • 2 bed • 2 bath • 1325 ft²
3 bedroom apartment for sale in Capital East Apartments, Royal Wharf, E16 , E16 — £675,000 • 3 bed • 2 bath • 1303 ft²
2 bedroom penthouse for sale in Adriatic Apartments, Royal Victoria Dock, E16 — £800,000 • 2 bed • 2 bath • 1187 ft²
2 bedroom duplex for sale in Western Gateway, London, E16 — £700,000 • 2 bed • 2 bath • 1246 ft²
2 bedroom penthouse for sale in Eastern Quay, Rayleigh Road, Royal Docks, London, E16 — £525,000 • 2 bed • 2 bath • 1006 ft²


















































































































































































































































































































































































































































