Versatile family home with annexe and huge garden near shops and beaches.
- Five bedrooms plus separate self-contained annexe with private entrance
- Large, mature rear garden with deck, detached studio and workshop
- Open-plan country-style kitchen/dining/family room with French doors
- Off-street parking for two vehicles and double-glazed windows
- Built c.1900–1929; cavity walls assumed uninsulated — likely higher energy costs
- Two bathrooms for five bedrooms; may need reconfiguration for large families
- Tenure not specified — buyer should confirm ownership details
- Local crime levels above average; check security and neighbourhood data
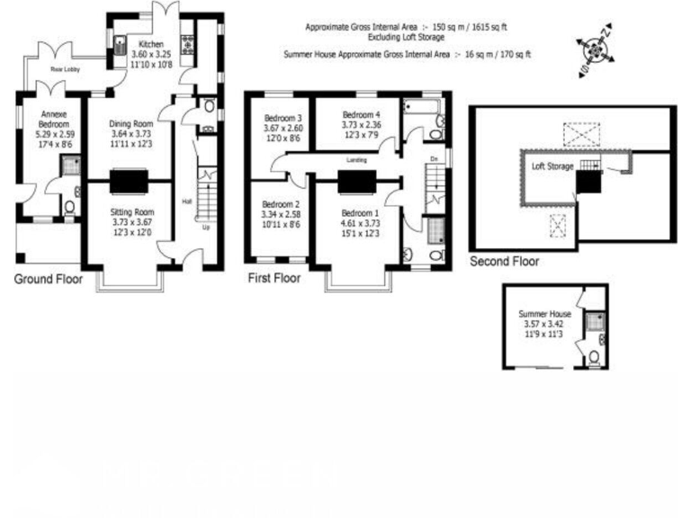
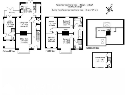
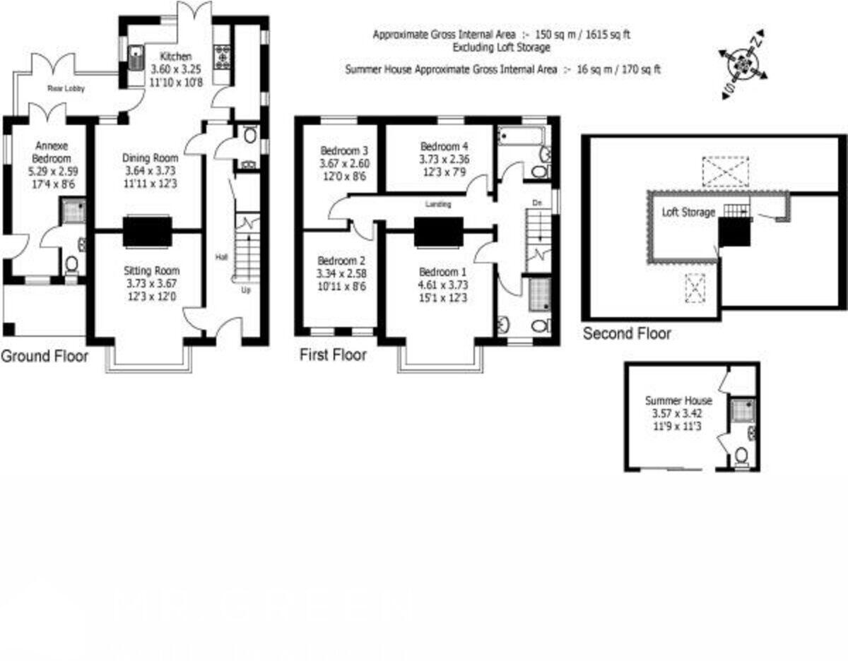
Set on a large plot close to Southbourne's clifftops and beaches, this versatile five-bedroom detached house suits a growing or multigenerational family. The main house offers four double bedrooms and an open-plan country-style kitchen/dining/family area with solid wood worktops and French doors leading to a private, mature rear garden and raised deck. A separate front lounge with a feature fireplace provides a cosy retreat.
A key advantage is the self-contained annexe with its own private entrance and shower room, ideal for visiting family, dependent relatives, long-term rental or holiday-let income. A detached garden studio/log cabin plus workshop and shed add flexible space for home working, hobbies or storage. Off-street parking for two cars and double glazing are practical day-to-day benefits.
Important practical points: the property dates from 1900–1929 and cavity walls are assumed to have no insulation, which will affect heating efficiency and running costs. Tenure is not specified. Crime in the area is above average — buyers should satisfy themselves on local safety and security measures. There are two bathrooms serving five bedrooms, which may require adaptation for larger families.
Positioned a few hundred metres from Southbourne Grove’s shops, cafés and transport links, and near well-rated primary and secondary schools, the house combines coastal living with everyday convenience. The layout, annexe and large plot create clear potential for improvement, modernisation or income generation, making the home attractive to families and buyers seeking value-add projects.
6 bedroom detached house for sale in Wentworth Avenue, Bournemouth, Dorset, BH5 — £975,000 • 6 bed • 4 bath • 2890 ft²
5 bedroom detached house for sale in Avoncliffe Road, Southbourne, BH6 — £800,000 • 5 bed • 2 bath • 2000 ft²
5 bedroom semi-detached house for sale in Southbourne Road, BOURNEMOUTH, Dorset, BH6 — £450,000 • 5 bed • 1 bath • 1492 ft²
3 bedroom detached house for sale in Heytesbury Road, Southbourne, BH6 — £525,000 • 3 bed • 1 bath • 1021 ft²
6 bedroom detached house for sale in Southwood Avenue , Bournemouth , BH6 — £950,000 • 6 bed • 4 bath • 3364 ft²
4 bedroom detached house for sale in Warren Edge Road, Bournemouth, BH6 — £795,000 • 4 bed • 3 bath • 1377 ft²






































































































































































