Contemporary four-bedroom detached house with garage and private two-level garden.
Built 2021 with remainder of NHBC guarantee
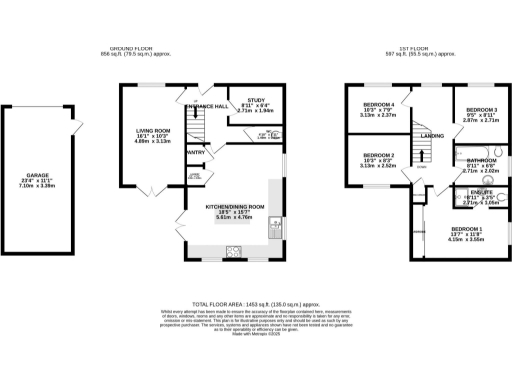
This spacious four-bedroom detached house on Foxglove Meadows was built in 2021 and still benefits from the remainder of the NHBC guarantee. The home was upgraded during construction with a granite-topped kitchen, integrated appliances and enhanced finishes throughout, creating a contemporary, low-maintenance family home with a B energy rating and mains gas central heating.
The heart of the house is the large kitchen/dining room with central island, pantry and French doors out to a two-level, private rear garden with porcelain patios and artificial lawn. Ground-floor living is flexible with a dual-aspect sitting room, handy study (or occasional fifth bedroom) and a practical utility room. Driveway parking leads to a larger-than-average single garage with loft storage.
Upstairs offers four bedrooms, the principal with built-in wardrobes and an en suite shower room, plus a family bathroom featuring a Japanese Omnitub (hot tub available by negotiation). Practical drawbacks to note: council tax is in Band E, there is a small six-monthly ground rent charge, and the utility room is compact. Overall this is a well-specified, move-in-ready family home in a very affluent, low-crime area with good local schools and fast broadband speeds.
3 bedroom detached house for sale in Taylors Fields, Banwell, BS29 — £389,950 • 3 bed • 1 bath • 1155 ft²
4 bedroom detached house for sale in Buller Road, Banwell, North Somerset, BS29 — £500,000 • 4 bed • 3 bath • 1624 ft²
4 bedroom semi-detached house for sale in Cowleaze Path, Mead Fields - AS NEW CONDITION, BS29 — £325,000 • 4 bed • 2 bath • 345 ft²
4 bedroom detached house for sale in Dyer Street, Banwell, BS29 — £440,000 • 4 bed • 2 bath • 591 ft²
4 bedroom detached house for sale in Totterdown Lane, Weston-super-mare, BS24 — £500,000 • 4 bed • 2 bath • 2239 ft²
3 bedroom town house for sale in Milbury Gardens, Worlebury, Weston-Super-Mare, BS22 — £450,000 • 3 bed • 2 bath • 1408 ft²










































































