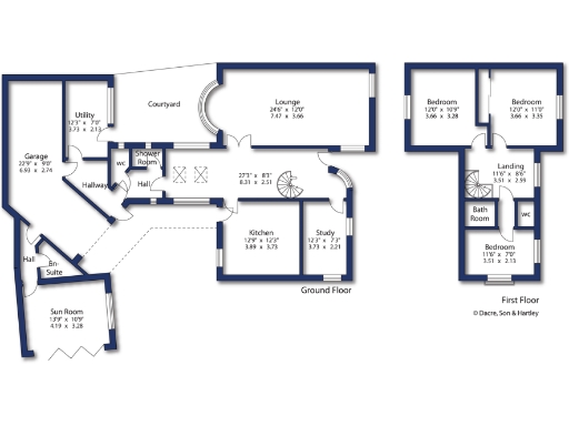
**Standout Features:**
- Charming 1850s period property
- Detached 3-bedroom home with a ground-floor annexe and en-suite
- Expansive mature gardens providing privacy and outdoor space
- Unique architectural features, including a log burner fireplace and spiral staircase
- Located in a highly sought-after village position with access to top schools
**Potential Concerns:**
- Solid brick walls may lack insulation
- Double glazing installation date unknown
- Higher council tax band (F)
Crookhill Cottage is a captivating 1850s detached family home nestled in the tranquil village of Skelton, York. This property boasts three spacious bedrooms, complemented by a versatile ground-floor annexe featuring its own en-suite—ideal for extended family or guests. With its rich period features, including a striking log burner fireplace crafted from reclaimed timber, and a feature spiral staircase, this home showcases a unique blend of historic charm and modern living.
Set amidst large, lush gardens, it provides ample outdoor space for relaxation and recreation, ensuring a peaceful retreat from the hustle and bustle. Residents will enjoy the benefits of a community-focused atmosphere, with access to excellent local schools and amenities, including a village shop and welcoming pub. Perfect for families seeking comfort, security, and a touch of exclusivity, Crookhill Cottage offers the rare opportunity to own a piece of history just a stone's throw from the vibrant city of York. Don't miss the chance to experience the character and potential of this extraordinary property.
2 bedroom cottage for sale in Chestnut Row, Skelton, York, YO30 — £230,000 • 2 bed • 1 bath • 1192 ft²
2 bedroom house for sale in Moor Lane, Shipton By Beningbrough, York, YO30 — £350,000 • 2 bed • 2 bath • 908 ft²
6 bedroom semi-detached house for sale in Strensall Road, Huntington, York, YO32 — £1,000,000 • 6 bed • 2 bath • 2500 ft²
3 bedroom cottage for sale in Main Street, Askham Richard, York, YO23 3PT, YO23 — £585,000 • 3 bed • 2 bath • 1429 ft²
4 bedroom detached house for sale in Main Street, Linton On Ouse, York, YO30 — £550,000 • 4 bed • 3 bath • 2337 ft²
4 bedroom detached house for sale in Orchard View, Skelton, York, YO30 — £900,000 • 4 bed • 2 bath • 3880 ft²














































































































