CV11 5SB - 3 bedroom terraced house for sale in Cheverel Street, Nunea…

View on Property Piper

3 bedroom terraced house for sale in Cheverel Street, Nuneaton, CV11

Summary - 31 CHEVEREL STREET NUNEATON CV11 5SB

3 bed 1 bath Terraced

Affordable three-bedroom terrace near George Eliot Hospital, ideal for first-time buyers..
Three well-proportioned bedrooms
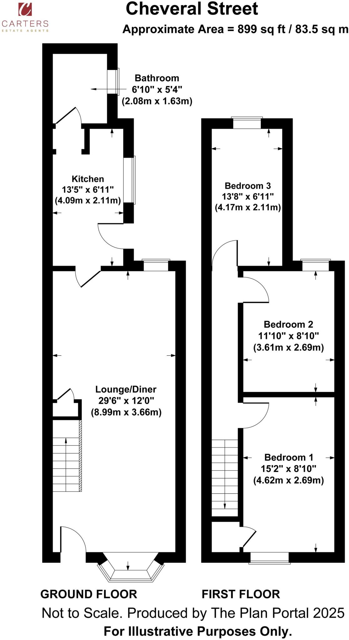
This mid-terrace Victorian home on Cheverel Street offers an affordable entry into Nuneaton’s housing market. The property has three well-proportioned bedrooms, a through lounge/diner with a character log burner, and an enclosed rear garden — a practical layout for first-time buyers or landlords. Its freehold tenure and low council tax add to the running-cost appeal.

The location is a genuine strength: a short walk to George Eliot Hospital, close to the A444 for Midlands road links, and within reach of Nuneaton town centre amenities and multiple good-rated schools. Broadband speeds and mobile signal are strong, and local crime levels are low, supporting comfortable everyday living.

Internally the house shows its age and will benefit from modernisation. Rooms are small to medium in scale, the living area and kitchen are dated, and there is a single ground-floor bathroom only. The property sits in a deprived area and may suit buyers prioritising affordability and potential rather than immediate high-spec finishes.

For someone prepared to update interiors, this home offers clear scope to add value — cosmetic refurbishment, kitchen and bathroom upgrades, and garden landscaping would markedly improve comfort and resale/rental potential. Investors should note the strong rental catchment nearby; first-time buyers will find the size and location a sensible, budget-conscious starter home.

Property Details

Image Descriptions

Floorplan Description

Rooms

Textual Property Features

Target Audience

AI Tags

Detected Visual Features

Nearby Schools

Nearest Bars And Restaurants

,,,,}

Nearest General Shops

,,}

Nearest Grocery shops

,,}

Nearest Supermarkets

,,}

Nearest Religious buildings

,,}

Nearest Medical buildings

,,,}

Nearest Airports

}

Nearest Leisure Facilities

,,,,}

Nearest Tourist attractions

,,}

Nearest Train stations

,,,,}

Nearest Bus stations and stops

,,,,}

Nearest Hotels

,,}

Tags

Local Market Stats

AirBnB Data

Similar Properties

Meta

High Res Images

Compatible Images

Low res Images

Thumbnails

Raw Images

High Res Floorplan Images

Compatible Floorplan Images

Low res Floorplan Images

FloorplanImages Thumbnail

Raw Floorplan Images