RM1 4JR - 4 bedroom semidetached house for sale in Marshalls Drive, M…

View on Property Piper

4 bedroom semi-detached house for sale in Marshalls Drive, Marshalls Park, RM1 4JR, RM1

Summary - 23 Marshalls Drive RM1 4JR

4 bed 2 bath Semi-Detached

**Standout Features:**
- Recently extended with rear and loft extensions
- Four bedrooms, including a master with en-suite
- Bright lounge/diner with garden access
- Separate kitchen and convenient downstairs shower room
- Lovely garden with fruit trees and an outbuilding
- Garage with rear access and off-street parking

**Potential Concerns:**
- Average-sized property; modest living space for larger families
- Solid brick walls without insulation may affect energy efficiency

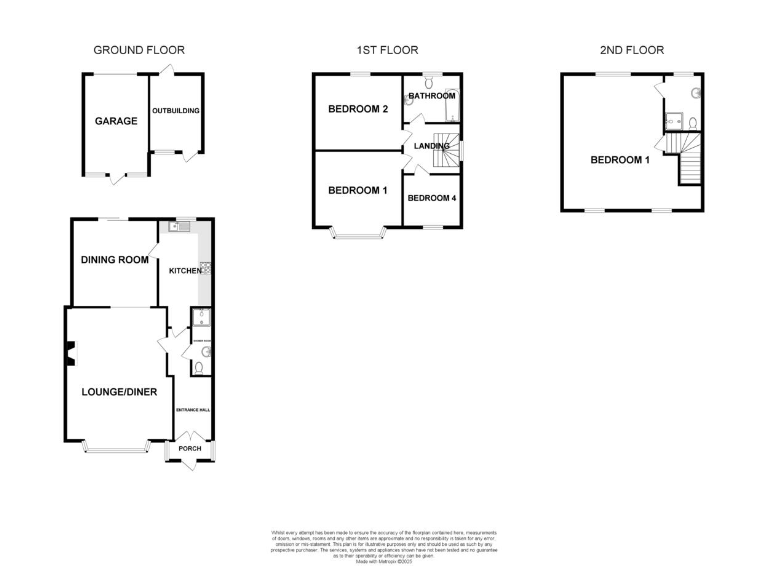
Discover your perfect family home in the desirable Marshalls Park area, now available for £550,000 - £575,000! This charming semi-detached property boasts four spacious bedrooms across three floors, including a master suite with en-suite for ultimate privacy. On the ground floor, enjoy a bright lounge/diner that opens onto a beautifully landscaped garden, ideal for outdoor entertaining or peaceful relaxation. The well-appointed kitchen and convenient downstairs shower room add to the home's practicality, making it ideal for busy family life.

Step outside to find a serene garden adorned with fruit trees, plus a garage and outbuilding—perfect for hobbies or a home office. With off-street parking and a location in a community renowned for its excellent schools and low crime rates, this home combines comfort and convenience for families of all sizes. Don't miss your chance to add your personal touch to this well-maintained property with great potential for further renovations. Act now—homes like this won't last long!

Property Details

Image Descriptions

Floorplan Description

Rooms

Textual Property Features

Detected Visual Features

EPC Details

Nearby Schools

Nearest Bars And Restaurants

,,,,}

Nearest General Shops

,,}

Nearest Grocery shops

,,}

Nearest Supermarkets

,,}

Nearest Religious buildings

,,}

Nearest Medical buildings

,,,}

Nearest Airports

,}

Nearest Leisure Facilities

,,,,}

Nearest Tourist attractions

,,}

Nearest Train stations

,,,,}

Nearest Bus stations and stops

,,,,}

Nearest Hotels

,,}

Tags

Local Market Stats

AirBnB Data

Similar Properties

Meta

High Res Images

Compatible Images

Low res Images

Thumbnails

Raw Images

High Res Floorplan Images

Compatible Floorplan Images

Low res Floorplan Images

FloorplanImages Thumbnail

Raw Floorplan Images