**Standout Features:**
- Brand new, high-specification park home for over 50s
- Modern design with open-plan living area and integrated appliances
- Fully furnished with two bedrooms—one double with fitted wardrobes
- Set within a scenic 60-acre residential development
- Community living with off-street parking and pets welcome
- Close to amenities in nearby Oakham and beautiful countryside walks
- Part exchange option available, with chain-free purchase
**Summary:**
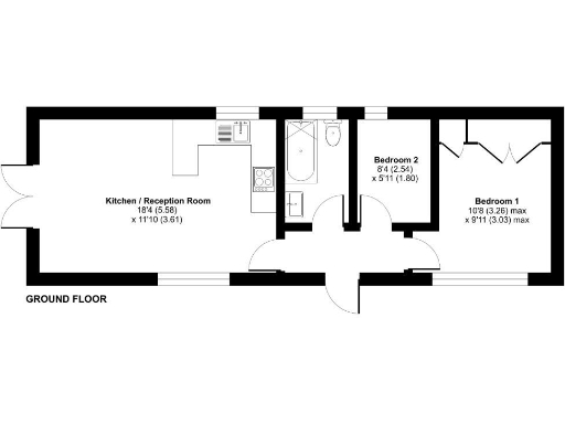
Discover the perfect blend of modern living and community charm in this brand new park home, exclusively designed for those over 50. This meticulously crafted property features a stylish open-plan kitchen, dining, and living space, complete with contemporary finishes, an electric fireplace, and patio doors that flood the area with natural light. The home comprises a spacious double bedroom with fitted wardrobes, a cozy single bedroom, and a well-appointed bathroom, all set within a manageable 520 square feet.
Positioned in a peaceful, pet-friendly environment surrounded by stunning countryside, this property enjoys the benefits of communal living while being just a short drive from Oakham’s vibrant shops, restaurants, and recreational opportunities, including the nearby Rutland Water Nature Reserve.
While the monthly site fee is relatively high, this offers maintenance-free living in a secure, low-crime area that caters wonderfully to those seeking a serene lifestyle. With part exchange options available, this remarkable home won't stay on the market long—take the opportunity now to embrace comfort, community, and countryside living!
2 bedroom park home for sale in Oakham, Rutland, LE15 — £200,000 • 2 bed • 2 bath • 800 ft²
2 bedroom park home for sale in Oakham, Rutland, LE15 — £189,000 • 2 bed • 2 bath • 800 ft²
2 bedroom detached bungalow for sale in Ranksborough Hall Estates,
Langham,
Oakham,
Rutland,
LE15 7JR, LE15 — £220,000 • 2 bed • 2 bath • 800 ft²
2 bedroom park home for sale in Lodge Park, Langham, Oakham, LE15 — £175,000 • 2 bed • 2 bath • 750 ft²
2 bedroom park home for sale in The Park, Ranksborough Hall Park, Langham, Oakham, Rutland, LE15 7EL, LE15 — £205,000 • 2 bed • 2 bath • 900 ft²
2 bedroom park home for sale in Ranksborough Hall, Langham, Oakham, LE15 — £115,000 • 2 bed • 2 bath










































































