Move-in-ready three-bedroom family home with flexible ground-floor space and driveway parking..
Fully refurbished throughout to modern standards
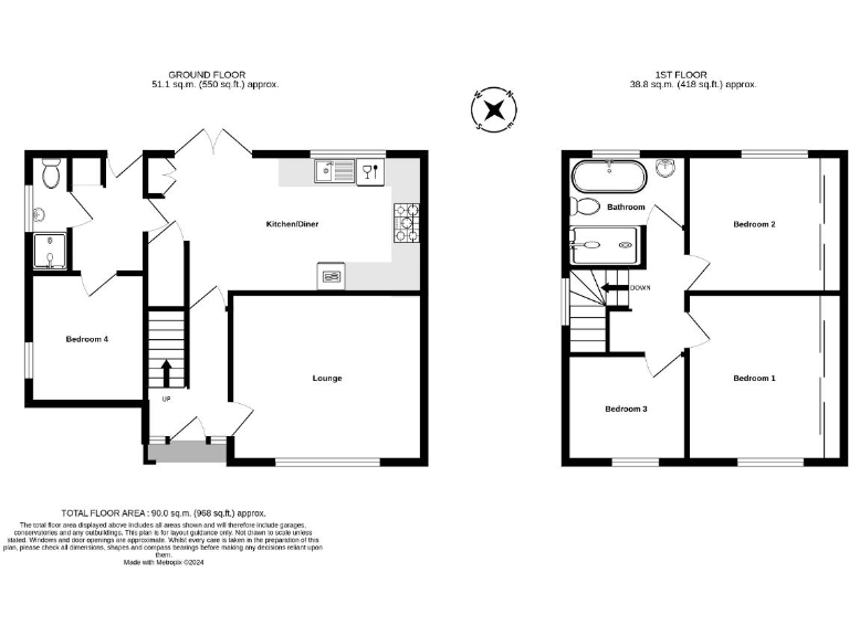
Recently fully refurbished throughout, this three-bedroom (plus flexible ground-floor room) semi-detached house combines contemporary finishes with practical family space. The ground floor offers a bright lounge, a generous kitchen/dining area and a utility room, while the additional ground-floor bedroom or study adds versatile living for a home office, playroom or guest space.
Upstairs, three bedrooms (two with fitted wardrobes) share a striking modern four-piece bathroom completed in a black-and-white scheme. The sunny, low-maintenance rear garden includes a large shed, greenhouse and sheltered seating area, and off-street driveway parking serves daily convenience.
Set on a decent plot close to open countryside, local shops and primary schools, this freehold home (968 sq ft) suits growing families seeking low-maintenance, move-in-ready accommodation. Note local secondary provision is mixed; two nearby secondaries have weaker Ofsted outcomes. The property has no reported flood risk and benefits from fast broadband and good mobile signal.
3 bedroom semi-detached house for sale in St. Richard's Road, Deal, Kent, CT14 — £365,000 • 3 bed • 1 bath • 914 ft²
4 bedroom semi-detached house for sale in Downs Road, East Studdal, CT15 — £465,000 • 4 bed • 2 bath • 1722 ft²
3 bedroom semi-detached house for sale in Havelock Road, Walmer, Deal, CT14 — £300,000 • 3 bed • 1 bath • 969 ft²
3 bedroom semi-detached house for sale in St. Barts Road, Sandwich, CT13 — £350,000 • 3 bed • 1 bath
3 bedroom semi-detached house for sale in Quinn Close, Deal, Kent, CT14 — £390,000 • 3 bed • 2 bath • 821 ft²
4 bedroom detached house for sale in Poulders Gardens, Sandwich, Kent, CT13 — £565,000 • 4 bed • 3 bath • 1321 ft²


















































































