Bright open-plan kitchen and garden, ideal for growing families.
Five double bedrooms across three floors, including converted loft space
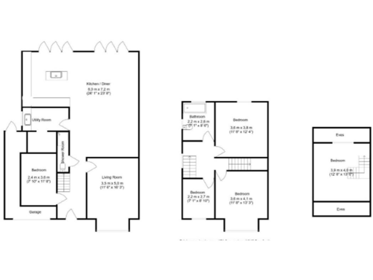
This extended five-bedroom semi-detached house is arranged over three floors and finished to a high standard, making it well suited to growing families who need space and modern living. The 27ft open-plan kitchen, dining and family room is the home's social centre, with a roof lantern, two sets of bi-fold doors and underfloor heating that link the interior to the landscaped rear garden.
Practical adaptations include a converted garage currently used as a fifth bedroom or study, a utility room and a ground-floor shower room/Cloakroom W/C & shower that add everyday convenience. Off-street parking is provided by a large block-paved driveway and gated side access leads to a decent-sized rear garden.
The property sits within the Putteridge school catchment and is a short walk from local leisure facilities and countryside access, while transport links include easy routes to the A1, M1 and Luton Airport. EPC is currently TBC and council tax sits at a moderate level.
Notable negatives are highlighted factually: the wider neighbourhood records higher deprivation statistics despite very low local crime, and the home provides two bathrooms for five bedrooms which may not suit larger households without further alteration. Buyers should also confirm final EPC details and review the converted garage space to ensure it meets their intended use.
3 bedroom semi-detached house for sale in Edgewood Drive, Luton, Bedfordshire, LU2 — £375,000 • 3 bed • 1 bath • 1080 ft²
5 bedroom semi-detached house for sale in St. Michaels Crescent, Luton, LU3 — £575,000 • 5 bed • 3 bath • 2362 ft²
5 bedroom semi-detached house for sale in Fallowfield, Luton, Bedfordshire, LU3 1UN, LU3 — £500,000 • 5 bed • 2 bath • 1004 ft²
5 bedroom detached house for sale in Bedford Road, Henlow, SG16 — £600,000 • 5 bed • 3 bath • 1238 ft²
5 bedroom detached house for sale in Greenside Park, Luton, LU2 — £650,000 • 5 bed • 2 bath • 1051 ft²
5 bedroom detached house for sale in Stockingstone Road, LU2 — £735,000 • 5 bed • 3 bath • 1593 ft²










































































































































