Compact one-bedroom flat close to beach, shops and restaurants.
No onward chain; 975-year lease remaining
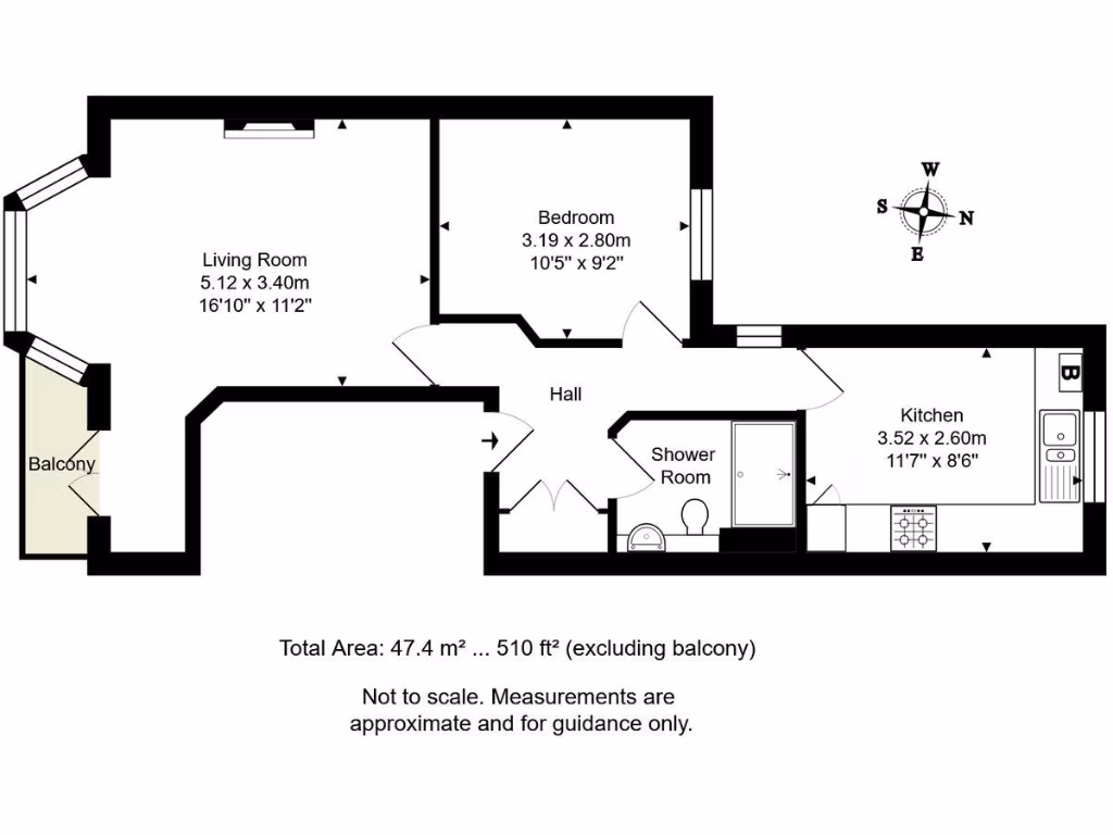
Bright, well-proportioned first-floor apartment in a central Seaton location, offered with the advantage of no onward chain and a very long lease (975 years). The apartment has a large L-shaped living/dining room with a south-facing bay window, French doors to a small balcony and a feature fireplace that brings plentiful natural light. The kitchen/breakfast room has newly refitted doors and quality appliances; the shower room is stylishly fitted and the double bedroom is a good size for the footprint.
Practical benefits include an allocated parking space at the rear (turning area may accommodate two smaller cars), mains gas central heating, double glazing and an EPC rating of C. Council Tax Band A keeps running costs low. The building sits a short walk from the seafront, beach, shops and restaurants, making it well suited for first-time buyers, a seaside second home or a buy-to-let investment.
Set within a period-style converted block, the apartment has no private rear garden and access is via communal stairs to the first floor, so it may be less suitable for anyone needing step-free access. The internal floor area is compact (approximately 510 sq ft), so space is efficient rather than generous. Overall, the property presents a low-maintenance coastal opportunity in a popular small-town location.
2 bedroom apartment for sale in Harbour Road, Seaton, Devon, EX12 — £155,000 • 2 bed • 1 bath • 529 ft²
1 bedroom apartment for sale in Harbour Road, Seaton, EX12 — £75,000 • 1 bed • 1 bath • 366 ft²
1 bedroom apartment for sale in Harbour Road, Seaton, Devon, EX12 — £146,000 • 1 bed • 1 bath • 450 ft²
2 bedroom apartment for sale in Harbour Road, Seaton, Devon, EX12 — £295,000 • 2 bed • 1 bath • 885 ft²
3 bedroom apartment for sale in East Walk, Seaton, Devon, EX12 — £330,000 • 3 bed • 1 bath • 711 ft²
2 bedroom apartment for sale in 6 Fore Street, Seaton, Devon, EX12 — £175,000 • 2 bed • 1 bath • 606 ft²






































