Compact modern investment close to transport and shops.
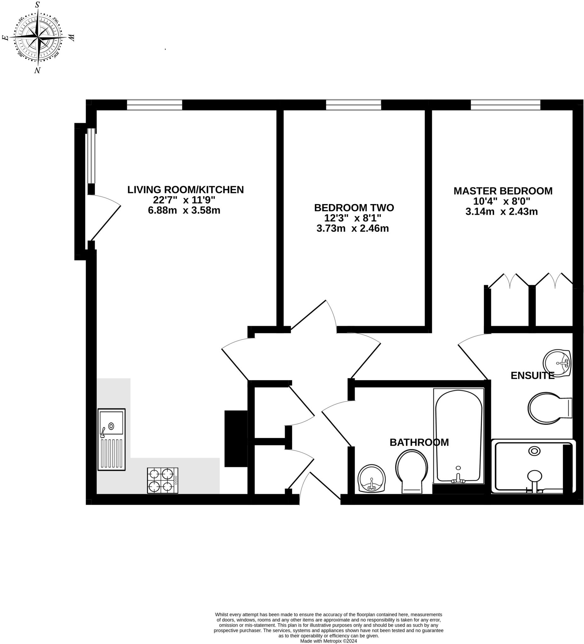
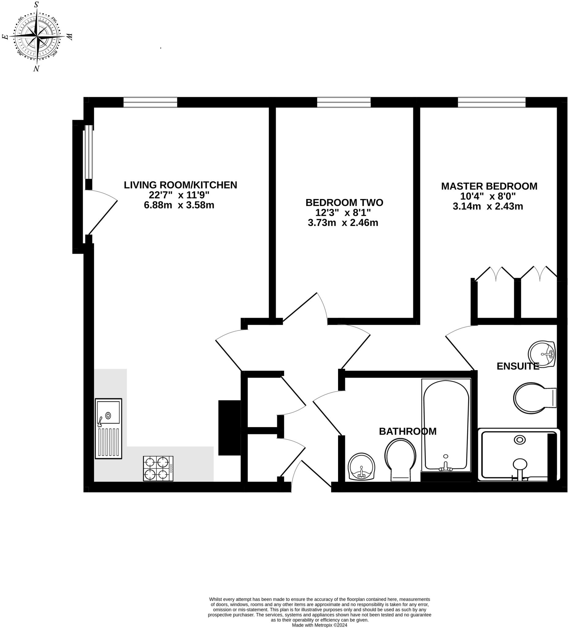
Corner apartment with quiet aspect and south-facing rooms for lower heating bills|Two double bedrooms; master includes an en suite shower room|Open-plan living/kitchen; modern fittings and double glazing|Undercroft off-street parking and lift to all floors|Short walk to Reading West station and local shops, Tesco nearby|Currently tenanted, offering over 7% yield; sold chain free|Leasehold tenure; building on a community heating scheme|Small overall size (447 sq ft); local area deprivation and high crime rates
This third-floor, corner apartment in West Reading offers a compact, modern two-bedroom layout ideal for buy-to-let purchasers or those wanting a low-fuss city base. At 447 sq ft the accommodation is efficiently planned: open-plan living/kitchen, two double bedrooms, an en suite to the master and a family bathroom. All rooms face south, helping reduce winter heating costs, and the flat benefits from double glazing and an EPC B rating.
Practical features include secure intercom entry, lift access to all floors, communal gardens and undercroft off-street parking. The location is highly convenient — a short walk to Reading West station, frequent buses to the town centre and immediate access to Tesco, cafés and other local amenities. Reading’s mainline and Elizabeth Line services are within reach for commuters.
The property is leasehold and currently rented, producing an advertised yield of over 7%, and it is offered with no onward chain. Buyers should note the small overall size (447 sq ft) and that the building uses a community heating/fuel scheme. The wider area is classified as constrained and relatively deprived, and local recorded crime levels are high — factors to consider for owner-occupiers and investors when assessing long-term prospects and insurance or letting conditions.
2 bedroom apartment for sale in Moulsford Mews, Reading, RG30 — £210,000 • 2 bed • 1 bath • 603 ft²
2 bedroom apartment for sale in Battle Square, Reading, Berkshire, RG30 — £210,000 • 2 bed • 2 bath • 633 ft²
2 bedroom apartment for sale in Moulsford Mews, Reading, RG30 — £210,000 • 2 bed • 1 bath • 634 ft²
2 bedroom flat for sale in Basing House, Reading, RG30 — £215,000 • 2 bed • 1 bath • 657 ft²
2 bedroom apartment for sale in 1 Nightingale House, Reading, RG30 — £295,000 • 2 bed • 2 bath • 795 ft²
2 bedroom apartment for sale in Kennet Street, Reading, Berkshire, RG1 — £315,000 • 2 bed • 2 bath • 876 ft²






































































