**Standout Features:**
- Prime town center location with easy access to amenities
- Two double bedrooms, including a master with ensuite
- Open-plan living and kitchen area with solid wood flooring
- Allocated secure onsite parking and basement storage unit
- Modern finishes, high ceilings, and large windows in a converted brewery
- Chain-free sale with 103 years remaining on the lease
**Potential Concerns:**
- High service charge of £2,092 annually
- Electricity heating; no community heating available
- High crime rate in the area
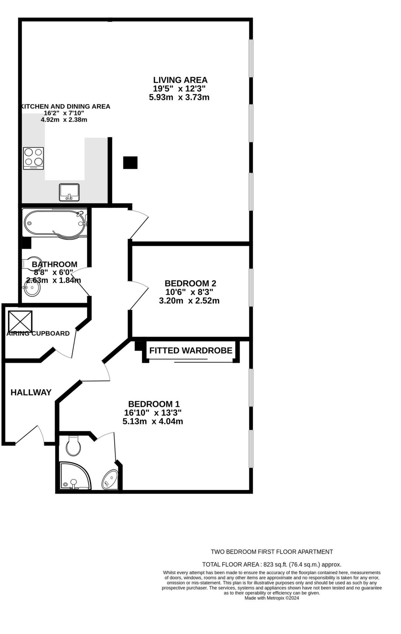
Step into this modern two-bedroom apartment situated in the heart of Ipswich's vibrant town center, within the unique converted Brewery building, lovingly referred to as Unicorn House. Enjoy the spacious open-plan living area, complemented by solid wood flooring, high ceilings, and large windows that create a bright, inviting atmosphere. The fully fitted kitchen boasts granite worktops and integrated appliances, making it an ideal space for culinary adventures. The master bedroom features generous fitted wardrobes and an ensuite shower room, while the second double bedroom offers a serene view of the preserved ruins of Blackfriars Monastery.
With secure parking, a cellar storage unit, and well-maintained communal areas, this property offers both comfort and convenience. Its current leasehold status ensures a straightforward chain-free transaction. However, please note the annual service charge and the electric heating system. This is a perfect investment for first-time buyers or those seeking to enjoy the cosmopolitan lifestyle of inner-city living, all while benefiting from the nearby amenities and good schools. Don’t miss out on the opportunity to make this urban haven your own!
2 bedroom apartment for sale in Foundation Street, Ipswich, IP4 — £130,000 • 2 bed • 2 bath • 560 ft²
3 bedroom penthouse for sale in Unicorn House, Foundation Street, Ipswich, IP4 — £335,000 • 3 bed • 2 bath • 1943 ft²
2 bedroom apartment for sale in Princes Street, Ipswich, IP1 — £160,000 • 2 bed • 2 bath • 937 ft²
2 bedroom apartment for sale in Elm Street, IPSWICH, IP1 — £150,000 • 2 bed • 1 bath • 625 ft²
2 bedroom apartment for sale in Great Colman Street, Ipswich, IP4 — £185,000 • 2 bed • 2 bath • 528 ft²
2 bedroom apartment for sale in Elm Street, Ipswich, IP1 — £160,000 • 2 bed • 2 bath • 646 ft²






























































































