**Standout Features:**
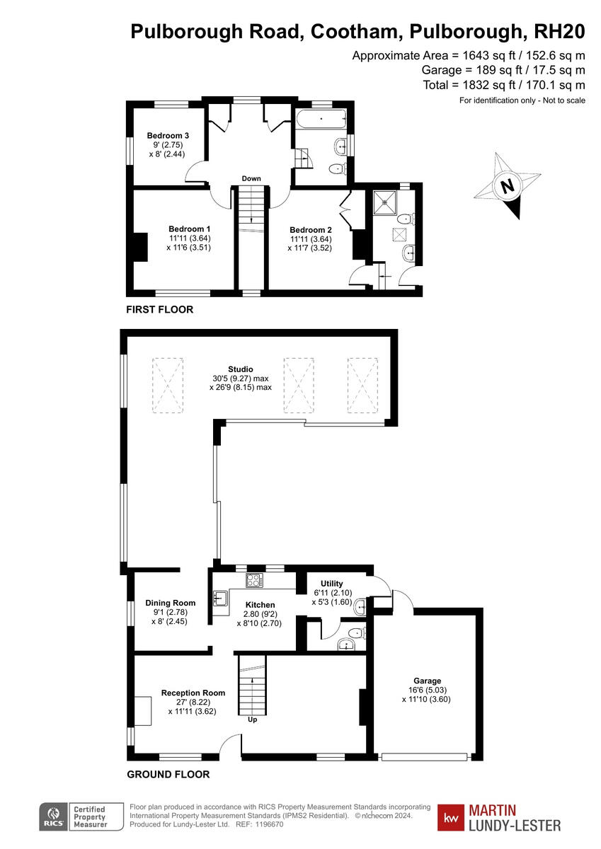
- 3 good-sized bedrooms, including a master with ensuite
- Unique L-shaped studio room with abundant natural light
- Large integral garage/workshop and ample parking behind timber gates
- Expansive garden with a lovely lawn, ideal for outdoor activities
- Wealth of period features dating back to the early 1800s, with modern renovations
- Quiet location near stunning South Downs walks
**Concise Summary:**
Discover this captivating three-bedroom detached house in Cootham, overflowing with historic charm and modern convenience. Spanning almost 1,900 sq ft, this thoughtfully renovated home incorporates stunning Georgian features alongside sleek contemporary accents. At its heart lies a remarkable L-shaped studio room, complete with sliding glass doors and skylights, perfect for a creative workspace, an open-plan kitchen, or even a cozy annexe.
The property’s spacious reception room, with a dual woodburner, and a well-equipped kitchen opening onto the garden optimize comfort and functionality. Each generous bedroom can accommodate doubles, with the principal suite benefiting from an ensuite bathroom. Nestled behind secure gates and surrounded by a vibrant garden, this home offers a feeling of seclusion and serenity.
While the area boasts low crime rates and a plethora of amenities within a short walk, potential buyers should note the rural broadband speeds may be slower. However, with excellent schools nearby and direct access to the picturesque South Downs, this is a perfect family haven or investment opportunity. Don’t miss your chance to own a piece of Cootham history; properties like this do not stay on the market for long!
4 bedroom detached house for sale in Pulborough Road, Cootham, RH20 — £1,000,000 • 4 bed • 1 bath • 2000 ft²
3 bedroom terraced house for sale in Cootham Green, Cootham, RH20 — £345,000 • 3 bed • 1 bath • 943 ft²
3 bedroom cottage for sale in Coolham, RH13 — £775,000 • 3 bed • 2 bath • 2062 ft²
3 bedroom detached house for sale in Storrington - well presented family home, RH20 — £750,000 • 3 bed • 2 bath • 1825 ft²
4 bedroom semi-detached house for sale in Cootham Brow, Storrington, Pulborough, West Sussex, RH20 — £500,000 • 4 bed • 1 bath • 1314 ft²
5 bedroom detached house for sale in Lordings Lane, West Chiltington, RH20 — £950,000 • 5 bed • 2 bath • 2529 ft²






































































































































