SL1 5DF - 4 bed spacious four bedroom detached in Lower Cippenham Lan…

View on Property Piper

4 bedroom detached house for sale in Lower Cippenham Lane, Cippenham, SL1

Summary - 4 LOWER CIPPENHAM LANE SLOUGH SL1 5DF

4 bed 3 bath Detached

Chain-free family home with planning permission and easy London commute.
- Chain free and ready to buy
- 1.1 miles to Burnham station, 20 minutes to central London
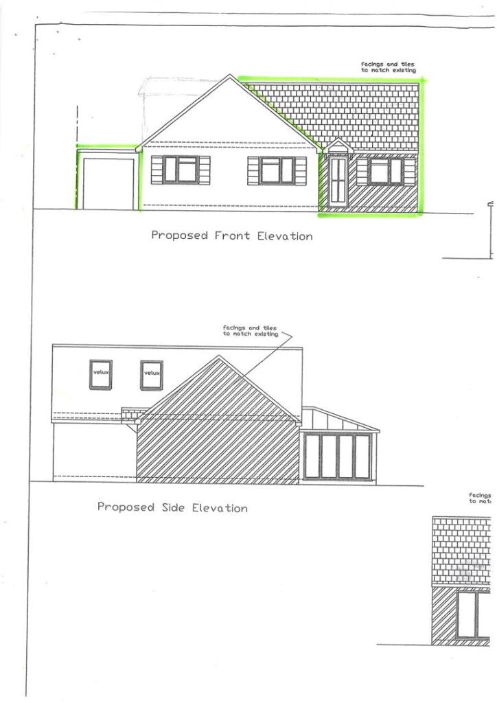
- Planning permission approved for side and garage extension
- Four double bedrooms and three bathrooms, versatile layout
- Private rear garden with sun room and patio
- Driveway parking plus single garage
- Constructed 1930s–1940s; cavity walls assumed uninsulated
- Council tax band above average (ongoing cost to budget for)
This chain-free four-bedroom house sits in a quiet cul-de-sac within easy walking distance of Burnham station (Elizabeth Line) and highly regarded local schools, making it well suited to families who need a straightforward commute to London. The home offers about 1,485 sq ft of versatile living space across two floors, with three bathrooms and a conservatory/sun room that opens onto a private, low-maintenance garden.

Planning permission is already approved for a side and garage extension, presenting clear scope to increase living space and resale value. Practical features include driveway parking for multiple vehicles, a single garage, double glazing fitted after 2002, mains gas central heating, and fast broadband — practical benefits for modern family life.

The house was built in the 1930s–1940s and retains period character, but the cavity walls are assumed uninsulated and the council tax band is above average. These are important ownership costs and improvement opportunities to consider if you plan further energy upgrades or refurbishment work.

Overall this property is an attractive, family-oriented home in a well-connected, affluent area. It offers immediate move-in convenience with clear potential to extend and improve, especially for buyers wanting extra space or increased rental/value return after renovation.

Property Details

Brochure Descriptions

Image Descriptions

Floorplan Description

Rooms

Textual Property Features

Target Audience

AI Tags

Detected Visual Features

EPC Details

Nearby Schools

Nearest Bars And Restaurants

,,,,}

Nearest General Shops

,,}

Nearest Grocery shops

,,}

Nearest Supermarkets

,,}

Nearest Religious buildings

,,}

Nearest Medical buildings

,,,}

Nearest Airports

}

Nearest Leisure Facilities

,,,,}

Nearest Tourist attractions

,,}

Nearest Train stations

,,,,}

Nearest Bus stations and stops

,,,,}

Nearest Hotels

,,}

Tags

Local Market Stats

AirBnB Data

Similar Properties

Meta

High Res Images

Compatible Images

Low res Images

Thumbnails

Raw Images

High Res Floorplan Images

Compatible Floorplan Images

Low res Floorplan Images

FloorplanImages Thumbnail

Raw Floorplan Images