Penthouse‑style two‑bed with concierge, parking and strong rental appeal.
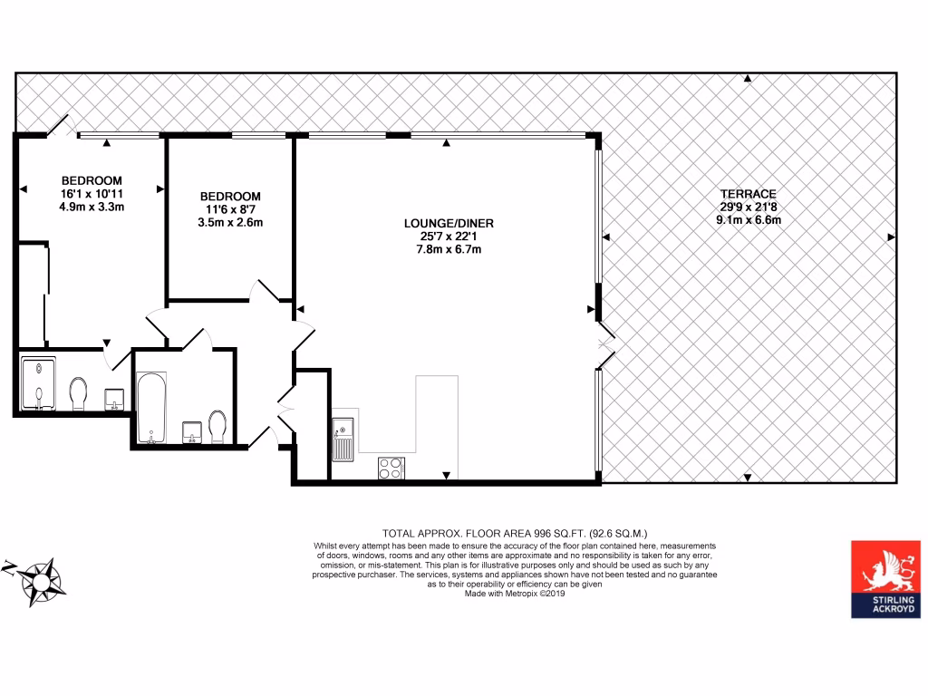
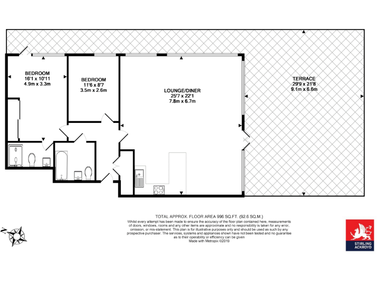
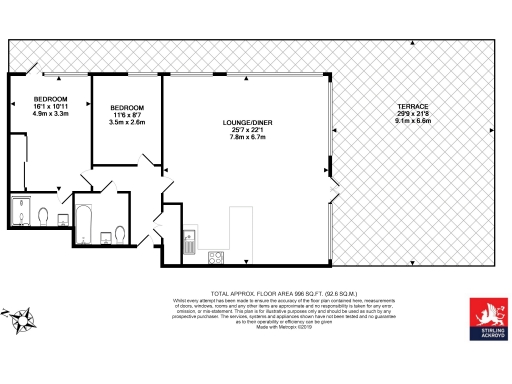
Large private terrace with far‑reaching City skyline views
Set across approximately 1,076 sq ft, this dual‑aspect sub‑penthouse delivers rare outdoor space and skyline views from a large private terrace. The apartment's floor‑to‑ceiling glazing floods the open-plan living area with light; there are two double bedrooms, an en‑suite, and a family bathroom. A concierge, lift access and allocated off‑street parking add practical convenience for city living.
Practical ownership is straightforward: a long lease (circa 236 years) and no onward chain reduce legal friction. That said, annual running costs are notable — a service charge of about £7,500 and ground rent of £250, plus an expensive council tax band — so budget accordingly. Broadband speeds are average, while mobile signal is excellent.
The location sits within a multicultural, inner‑city neighbourhood popular with students and city workers, offering strong rental demand and easy access to local amenities and transport. However, the area records above‑average crime figures, which should be weighed against the investment and lifestyle benefits.
Constructed in the early 2000s, the block benefits from modern double glazing and community gas heating. Buyers should inspect the communal and internal condition in person to assess any maintenance or refurbishment needs.
2 bedroom flat for sale in Walworth Road, Walworth, London, SE17 — £725,000 • 2 bed • 2 bath • 837 ft²
2 bedroom flat for sale in Amelia Street, Elephant and Castle, London, SE17 — £790,000 • 2 bed • 2 bath • 967 ft²
2 bedroom apartment for sale in Heygate Street, London, SE17 — £690,000 • 2 bed • 1 bath • 849 ft²
1 bedroom flat for sale in Boundary Lane, Burgess Park, SE17 — £385,000 • 1 bed • 1 bath • 512 ft²
3 bedroom penthouse for sale in Amelia Street, London, SE17 — £799,950 • 3 bed • 2 bath • 985 ft²
2 bedroom flat for sale in Newington Causeway, Elephant & Castle, SE1 — £500,000 • 2 bed • 1 bath • 590 ft²


















































