**Standout Features:**
- Fully restored Georgian townhouse with secure freehold tenure
- Four spacious bedrooms and three bathrooms
- Modern open-plan kitchen with an island and walk-in larder
- Elegant formal drawing room, spacious sitting room with wood-burning stove
- Converted cellar with extensive storage and a brick vaulted wine store
- Dog-friendly wet room and cloakrooms throughout
- Beautiful, leafy front garden and walled rear garden with cathedral views
- Chain-free, allowing for a quick and easy move
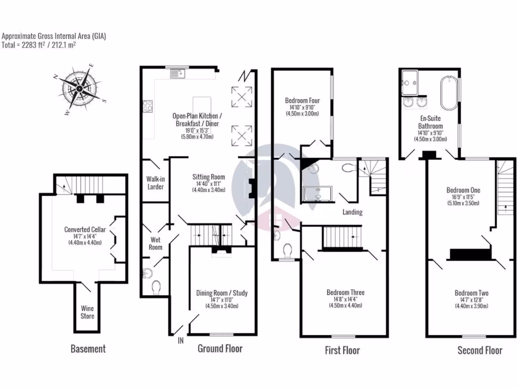
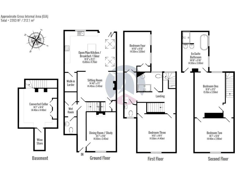
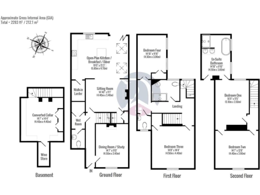
Experience the perfect fusion of historic charm and modern living in this substantial four-bedroom Georgian townhouse, prominently situated on the highly coveted Well Street in Bury St. Edmunds. This recently renovated period residence boasts an impressive 2,283 sq ft of space, featuring high ceilings and exquisite period details throughout. The modern extension is a standout, showcasing a light-filled open-plan kitchen that flows effortlessly into a cossetting sitting room, ideal for relaxation or entertaining.
Families will appreciate the practical layout, including a principal bedroom suite with an adjoining room perfect for a nursery or dressing area. Outdoor enthusiasts will love the secure, enclosed gardens, offering a tranquil escape in the heart of the city. Located steps from the vibrant town center, indulge in the local foodie scene, boutique shops, and easy access to transport links. With no onward chain, this residence is move-in ready, providing an exceptional opportunity for families and professionals alike. Don’t miss your chance to own a slice of history in this desirable neighborhood!



























































































