TN11 9LS - 4 bedroom semidetached house for sale in Garlands, Hildenbo…

View on Property Piper

4 bedroom semi-detached house for sale in Garlands, Hildenborough, Tonbridge, TN11

Summary - 2 GARLANDS HILDENBOROUGH TONBRIDGE TN11 9LS

4 bed 1 bath Semi-Detached

Extended four-bed semi with large gardens, garage and far-reaching field views — scope to extend STPP.
Four double bedrooms with countryside views from front rooms
Set on the edge of Hildenborough with far-reaching field views, this extended four-bedroom semi-detached home offers generous family space and large, landscaped gardens. The ground floor features a double-aspect living room, separate dining room with wood-burning stove and a practical boot room/WC with butler sink. A garage and private parking sit off a long side access. The property is freehold and conveniently placed for the village station and Tonbridge's schools and amenities.

The house dates from the early 20th century and retains traditional character alongside more contemporary touches such as a wood-burning stove and parquet or wood flooring in living areas. There is scope, subject to planning (STPP), for further rear expansion, which suits buyers seeking additional space or value-add potential. The plot includes a powered detached home office base and a small powered outbuilding.

Practical considerations are clear: the home has a single family bathroom, slow broadband speeds, and cavity walls are assumed to have no added insulation. Double glazing is fitted but installation dates are unknown. Heating is mains gas via a boiler and radiators; there is no recorded flood risk and mobile signal is excellent. Viewings are recommended to appreciate the site, garden and countryside outlook in person.

Property Details

Brochure Descriptions

Image Descriptions

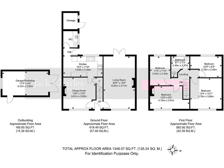
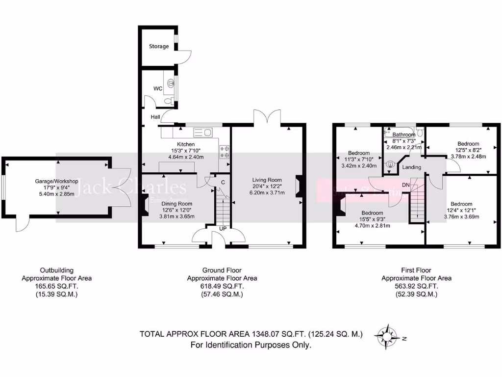
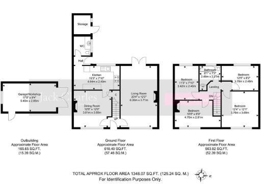
Floorplan Description

Rooms

Textual Property Features

Target Audience

AI Tags

Detected Visual Features

EPC Details

Nearby Schools

Nearest Bars And Restaurants

,,,,}

Nearest General Shops

,,}

Nearest Grocery shops

,,}

Nearest Supermarkets

,,}

Nearest Religious buildings

,,}

Nearest Medical buildings

,,,}

Nearest Airports

}

Nearest Leisure Facilities

,,,,}

Nearest Tourist attractions

,,}

Nearest Train stations

,,,,}

Nearest Bus stations and stops

,,,,}

Nearest Hotels

,,}

Tags

Local Market Stats

Similar Properties

Meta

High Res Images

Compatible Images

Low res Images

Thumbnails

Raw Images

High Res Floorplan Images

Compatible Floorplan Images

Low res Floorplan Images

FloorplanImages Thumbnail

Raw Floorplan Images