Light-filled three-bedroom maisonette with terraces close to underground stations.
Three double bedrooms and two bathrooms, including an en-suite
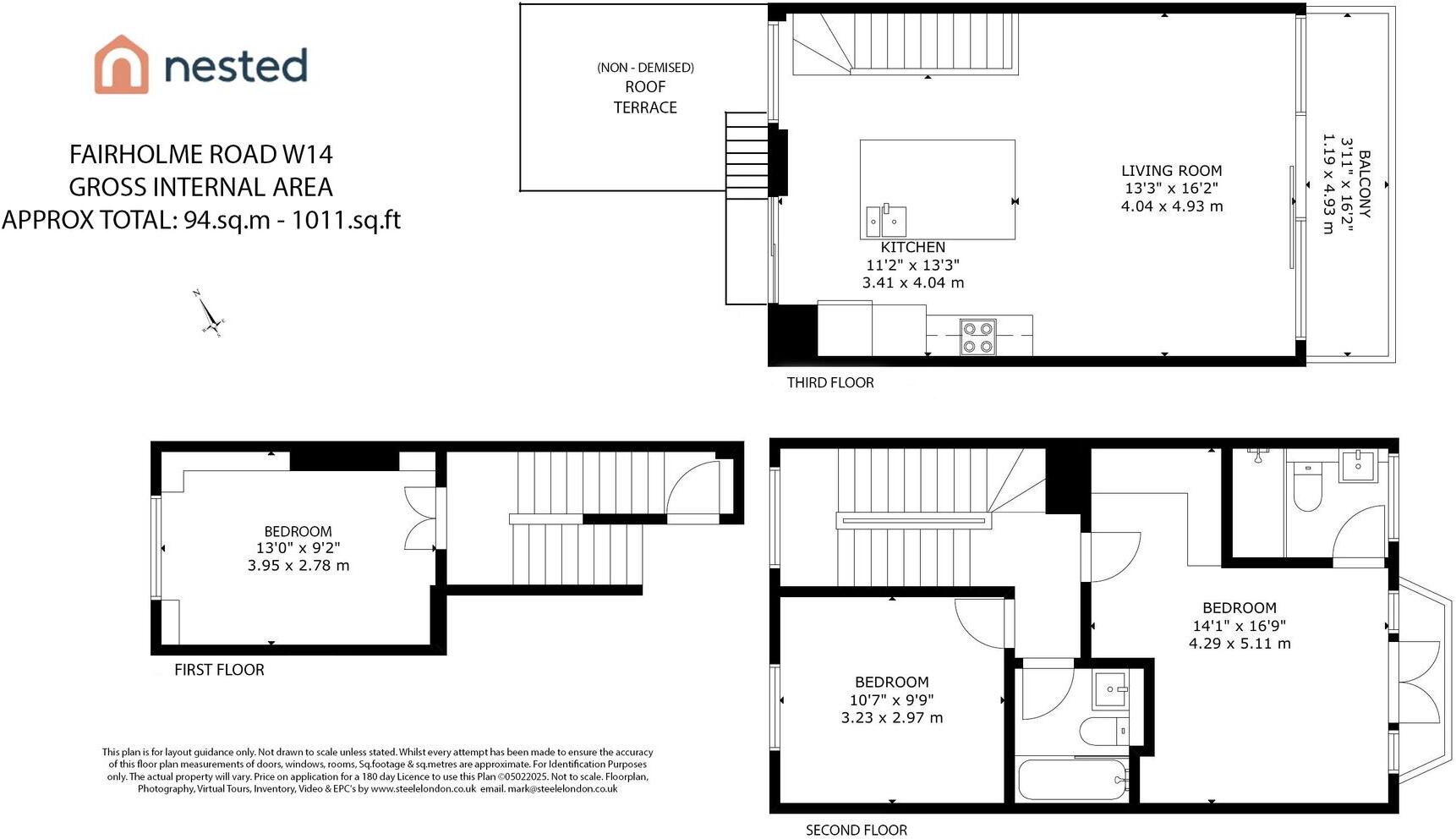
This split-level maisonette occupies the upper floors of an attractive Victorian terrace on Fairholme Road, offering light-filled living and three double bedrooms across just over 1,000 sq ft. The top floor’s open-plan kitchen, dining and reception benefits from high ceilings and large windows, creating an airy social space that opens onto terraces. The property has been newly refurbished to a high standard and includes an en-suite to the principal bedroom.
Outdoor space is a real plus: two roof terraces give private outdoor rooms for morning coffee and evening entertaining. Note one terrace is non-demised, so exclusive use is not guaranteed for both areas. Practicalities suit central living — low service overheads, mains gas heating, double glazing and an EPC rating of C.
Important lease and maintenance points are clear: the flat is leasehold with 86 years remaining, which may affect mortgage and resale considerations. The building is traditional solid-brick Victorian fabric with no assumed cavity insulation, so there may be longer-term thermal upgrade opportunities. The property sits in a busy, inner-city, multicultural neighbourhood with excellent transport links to West Kensington and Barons Court.
3 bedroom flat for sale in Fairholme Road, West Kensington, W14 — £979,000 • 3 bed • 2 bath • 1024 ft²
3 bedroom maisonette for sale in Archel Road, London, W14 — £1,125,000 • 3 bed • 2 bath • 1284 ft²
3 bedroom apartment for sale in Highlever Road, London, W10 — £875,000 • 3 bed • 2 bath • 908 ft²
2 bedroom flat for sale in Gledstanes Road, London, W14 — £675,000 • 2 bed • 1 bath • 652 ft²
3 bedroom maisonette for sale in Armadale Road, Fulham, SW6 — £985,000 • 3 bed • 2 bath • 1052 ft²
1 bedroom apartment for sale in Comeragh Road, London, Greater London, W14 — £465,000 • 1 bed • 1 bath • 465 ft²


























































































