Character first-floor flat with huge loft potential and panoramic estuary views..
- Two double bedrooms with generous proportions
- Huge loft with clear conversion potential (STPP)
- Panoramic farmland and Thames Estuary views
- Share of freehold and 188-year lease
- No onward chain for a quicker sale
- Off-street parking plus large shared garden
- Liveable now but benefits from modernisation
- Local crime levels higher than average
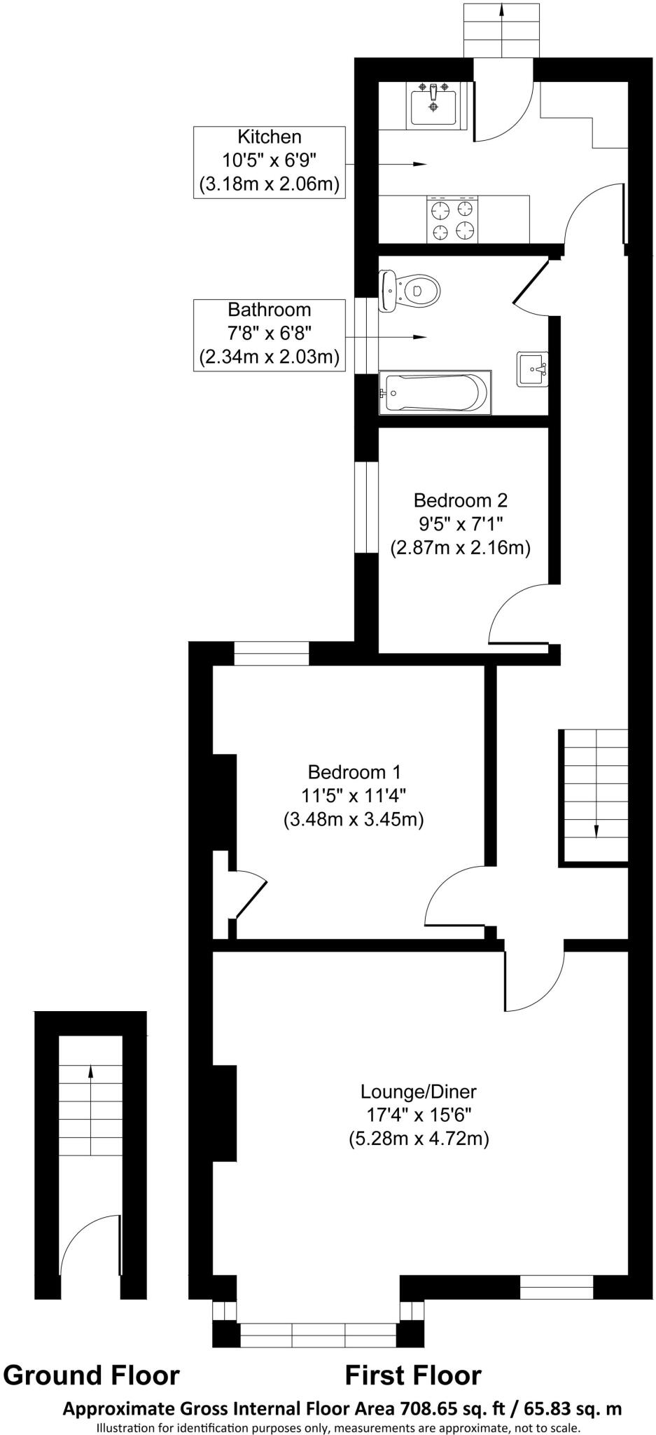
Set on the first floor of a handsome late-Victorian building, this well-proportioned two-double-bedroom flat combines period character with practical modern living. The vast double reception room and 30ft landing create a memorable sense of space, while panoramic views sweep across Salvation Army farmland to the Thames Estuary.
A major value driver is the huge loft space with clear conversion potential (subject to planning consents) to create a third bedroom or extra living area. The property comes with a valuable share of freehold, a long 188-year lease and no onward chain, offering security and a straightforward purchase for a buyer wanting control over future works.
Practical features include off-street parking and access to a large shared garden — unusual and useful perks for a flat. The flat is liveable now and shows well, but it will reward modernisation and updating to boost comfort and value; the walls are original solid brick (insulation status unknown) and the EPC is D.
Location is a genuine strength: walking distance to Hadleigh town centre and Country Park, close to bus routes and a short drive to Leigh Station for fast services to London. Note the area records higher-than-average crime levels locally, so buyers should consider security measures as part of any refurbishment plan.
2 bedroom flat for sale in Bramley Court, London Road, Hadleigh, Essex, SS7 — £200,000 • 2 bed • 1 bath • 650 ft²
2 bedroom flat for sale in Thames View Court, London Road, Hadleigh, Essex, SS7 — £250,000 • 2 bed • 1 bath
2 bedroom flat for sale in London Road, Hadleigh, Essex, SS7 — £240,000 • 2 bed • 1 bath • 709 ft²
2 bedroom ground floor flat for sale in Thames View Court, London Road, Hadleigh, Essex, SS7 — £275,000 • 2 bed • 1 bath
2 bedroom apartment for sale in Hadleigh , SS7 — £225,000 • 2 bed • 1 bath • 575 ft²
2 bedroom flat for sale in Leigh Hall Road, Leigh-On-Sea, SS9 — £240,000 • 2 bed • 1 bath • 646 ft²










































































