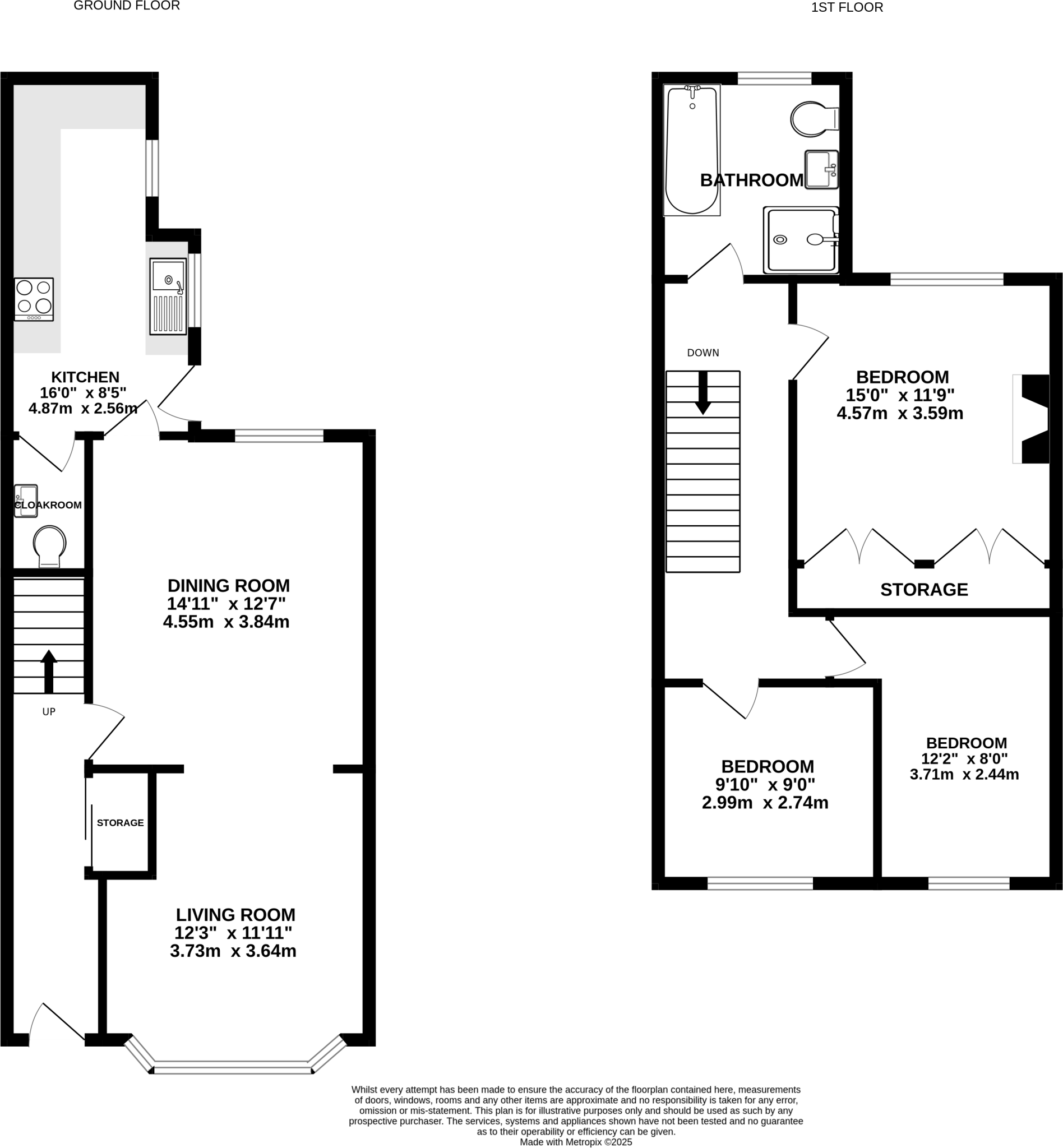
**Standout Features:**
- Newly renovated Edwardian terraced property
- Three well-proportioned bedrooms
- High specification kitchen with modern conveniences
- Bright, spacious living/dining area with a bay window
- 80ft rear garden with potential for extension (subject to planning)
- Close to local schools and amenities
**Summary:**
Discover this beautifully refurbished three-bedroom Edwardian home, elegantly combining period charm and modern finishes. Ideally located near Frimley Green village, this property features a welcoming entrance hall leading into a bright living/dining room adorned with a striking bay window and bespoke alcoves—perfect for family gatherings. The high specification kitchen offers functionality and easy access to the impressive 80ft rear garden, ideal for outdoor entertainment, with the added advantage of potential to extend (subject to planning permission).
Upstairs, three spacious bedrooms await, highlighted by a principal bedroom complete with extensive built-in wardrobes, as well as a sleek modern bathroom that serves the family. This home is perfect for growing families and first-time buyers alike, who desire a blend of comfort, character, and convenience. With strong local schools and picturesque surroundings, this exceptional property won’t stay on the market long—seize the opportunity to make it yours!
3 bedroom semi-detached house for sale in Buckhurst Road, Frimley Green, Camberley, Surrey, GU16 — £475,000 • 3 bed • 2 bath • 798 ft²
3 bedroom semi-detached house for sale in Buckhurst Road, Frimley Green, Camberley, GU16 — £395,000 • 3 bed • 1 bath • 787 ft²
3 bedroom terraced house for sale in Middlemoor Road, Frimley, Surrey, GU16 — £390,000 • 3 bed • 1 bath • 776 ft²
3 bedroom detached house for sale in Guildford Road, Frimley Green, Camberley, Surrey, GU16 — £435,000 • 3 bed • 1 bath • 958 ft²
3 bedroom semi-detached house for sale in Middlemoor Road, Frimley, Camberley, Surrey, GU16 — £425,000 • 3 bed • 2 bath • 967 ft²
3 bedroom semi-detached house for sale in Peabody Road, Farnborough, Hampshire, GU14 — £425,000 • 3 bed • 2 bath • 947 ft²


















































































