Generous living, flexible layout in Little Harwood with no chain.
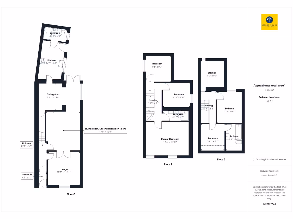
Five bedrooms across three floors, including en suite on second floor
A large, flexible five-bedroom Victorian terrace arranged over three floors in Little Harwood, offered with no onward chain. The house delivers three reception rooms, an extended fitted kitchen and a useful ground-floor wet room — practical for busy families or multi-generational living. One of the second-floor bedrooms benefits from an en suite, giving scope for private accommodation or rental income.
The property sits on a small but tidy front garden and a modest rear yard that have been maintained by the same family for years. Interiors are mostly neutral and liveable, with double glazing and gas central heating via boiler and radiators. The home measures about 1,584 sq ft, has a C EPC rating and is freehold.
Buyers should note a few material issues: rooms are generally small (typical of the period), there are signs of potential damp risk in places, and the cavity walls are assumed to lack insulation. On-street parking only, and the area rates as deprived which may affect long-term resale values for some purchasers. Council tax is very low, and broadband and mobile signal are good.
This house suits a growing family needing space and flexible layouts, or an investor prepared to refresh and modernise for rental or resale. With local shops, schools and places of worship close by, the location is convenient and well connected within Blackburn.
5 bedroom terraced house for sale in Preston New Road, Blackburn, Lancashire, BB2 — £325,000 • 5 bed • 1 bath • 2670 ft²
5 bedroom end of terrace house for sale in Preston New Road, Blackburn, BB2 — £325,000 • 5 bed • 2 bath • 2250 ft²
5 bedroom end of terrace house for sale in Revidge Road, Blackburn, Lancashire, BB1 — £265,000 • 5 bed • 5 bath • 1920 ft²
5 bedroom terraced house for sale in Cedar Street, Blackburn, BB1 — £215,000 • 5 bed • 2 bath • 1395 ft²
7 bedroom end of terrace house for sale in Coniston Road, Blackburn, BB1 — £375,000 • 7 bed • 3 bath • 2989 ft²
4 bedroom terraced house for sale in Coniston Road, Blackburn, BB1 — £265,000 • 4 bed • 3 bath • 1600 ft²


























































































