KT5 9AP - 2 bedroom semidetached house for sale in Beaconsfield Road,…

View on Property Piper

2 bedroom semi-detached house for sale in Beaconsfield Road, Surbiton, KT5

Summary - 46 Beaconsfield Road KT5 9AP

2 bed 1 bath Semi-Detached

Victorian two-bed semi with private garden and quick access to Surbiton station — ideal for small families..
Victorian semi-detached with bay window and period character
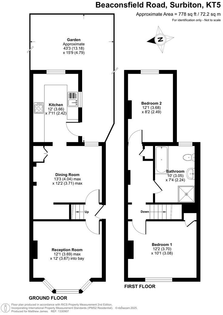
A bright Victorian semi-detached home arranged over two floors, offering two bedrooms, two reception rooms and a private enclosed garden. The front sitting room retains a bay window with shutters and a feature fireplace; the coordinated dining room and separate shaker-style kitchen with stone surfaces suit everyday family life. The main bedroom benefits from fitted shutters and air conditioning for summer comfort.

This property is well-located for families: Surbiton mainline station and local shops are within easy walking distance, and several highly rated primary and secondary schools are nearby. The house is presented in good condition with modern double-glazed sash windows and gas central heating via boiler and radiators, making it move-in ready for many buyers.

Notable practical points: the property sits on a small plot with a sunny patio and shed rather than extensive grounds, and the building’s solid brick walls are assumed uninsulated, which could mean higher heating costs unless upgraded. There is a medium flood risk for the area and council tax sits at band D. These are important factors for budgeting and insurance.

This home will suit a small family or couple seeking character, convenient commuting and outdoor space in Surbiton. It also offers modest scope for improving energy performance and garden landscaping to add long-term value.

Property Details

Brochure Descriptions

Image Descriptions

Floorplan Description

Rooms

Textual Property Features

Target Audience

AI Tags

Detected Visual Features

EPC Details

Nearby Schools

Nearest Bars And Restaurants

,,,,}

Nearest General Shops

,,}

Nearest Grocery shops

,,}

Nearest Supermarkets

,,}

Nearest Religious buildings

,,}

Nearest Medical buildings

,,,}

Nearest Airports

,,}

Nearest Leisure Facilities

,,,,}

Nearest Tourist attractions

,,}

Nearest Train stations

,,,,}

Nearest Bus stations and stops

,,,,}

Nearest Hotels

,,}

Tags

Local Market Stats

AirBnB Data

Similar Properties

Meta

High Res Images

Compatible Images

Low res Images

Thumbnails

Raw Images

High Res Floorplan Images

Compatible Floorplan Images

Low res Floorplan Images

FloorplanImages Thumbnail

Raw Floorplan Images