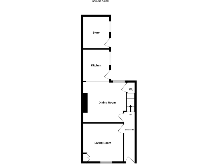
**Standout Features:**
- Extended ground-floor layout
- Contemporary kitchen with modern appliances
- Downstairs WC
- Separate workshop/utility room
- Excellent location near town center amenities
**Concerns:**
- Small overall size, totaling 608 square feet
- Average area deprivation and above-average crime rate
This well-presented late Victorian terraced property in sought-after Skipton offers an ideal opportunity for first-time buyers or families seeking a vibrant community atmosphere. The extended ground floor features a spacious dining area that flows into a contemporary kitchen, perfectly designed for entertaining or family gatherings. You'll appreciate the practicality of a downstairs WC and an additional utility space at the rear. Two generous double bedrooms provide cozy retreats after a busy day, complemented by a sizeable bathroom featuring a thermostatic shower over a bath.
Positioned just a stone's throw from the bustling town center, this property is not only close to schools with good Ofsted ratings but also has access to excellent public transport links and a myriad of amenities, including shops, dining, and recreational facilities. While the home requires some updating and maintenance, it offers significant potential for customization, making it a perfect canvas for your personal touches. Don’t miss the chance to own a slice of Skipton in a charming home that embodies warmth, community, and future potential—properties in this desirable area do not stay on the market for long!
2 bedroom terraced house for sale in 17 Romille Street, Skipton, North Yorkshire, BD23 2PJ, BD23 — £175,000 • 2 bed • 1 bath • 567 ft²
2 bedroom terraced house for sale in 40 Devonshire Street, Skipton, North Yorkshire, BD23 2ET, BD23 — £235,000 • 2 bed • 1 bath • 688 ft²
3 bedroom cottage for sale in 8 Brookside, Skipton, North Yorkshire, BD23 2HP, BD23 — £173,500 • 3 bed • 1 bath • 635 ft²
2 bedroom terraced house for sale in 70 Otley Street, Skipton, BD23 1ET, BD23 — £149,500 • 2 bed • 1 bath • 1216 ft²
3 bedroom terraced house for sale in 11 Castle Street, Skipton, BD23 2DH, BD23 — £189,500 • 3 bed • 1 bath • 731 ft²
3 bedroom terraced house for sale in 12 Wellington Street, Skipton, BD23 2DS, BD23 — £164,950 • 3 bed • 1 bath • 605 ft²














































