Move-in ready one-bedroom with private garage minutes from station and shops.
Brand new one-bedroom second-floor flat, 434 sq ft
Open-plan living/kitchen with two dormer windows
Private entrance; UPVC double glazing throughout
Air-source heating with radiators; efficient and modern
Secure lock-up garage with power; bin and bike storage
Communal garden; short walk to station, shops, seafront
Compact footprint and sloped ceilings limit usable height
Leasehold (149 years remaining) — confirm charges and terms
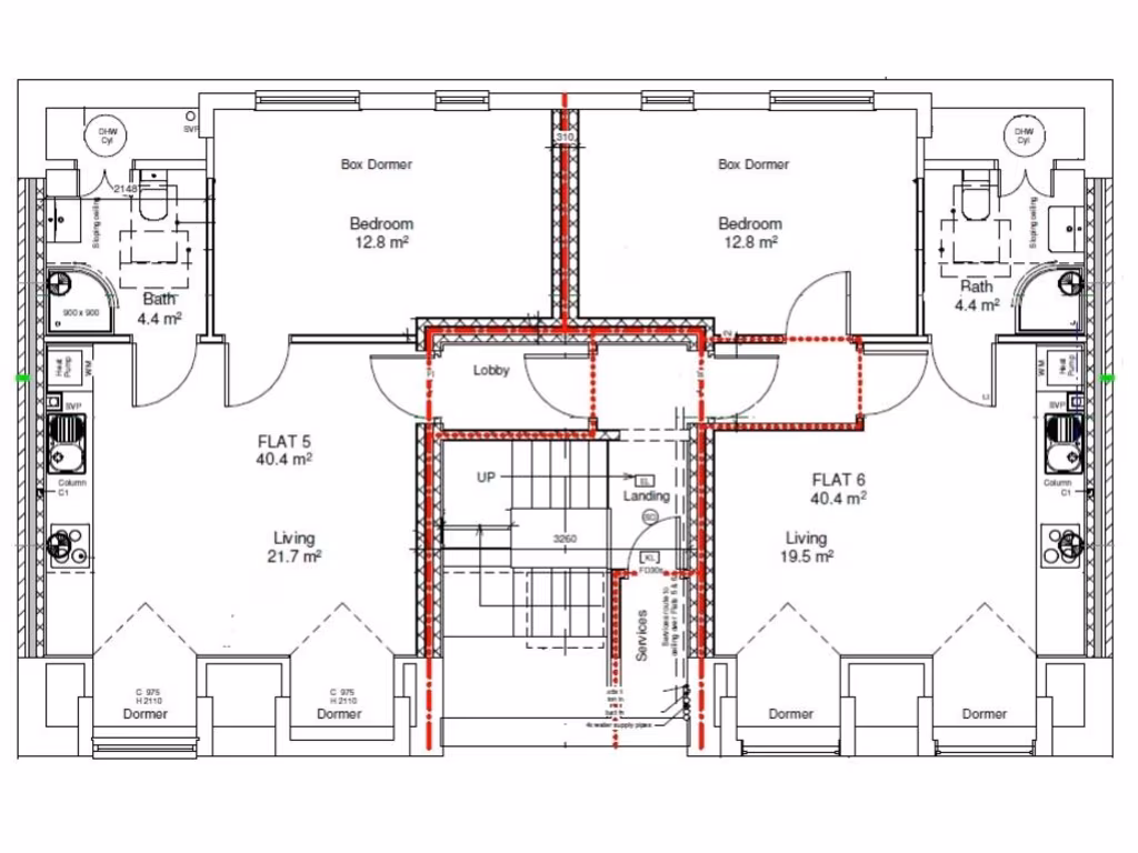
This second-floor, one-double-bedroom apartment forms part of a small new-development courtyard a short walk from Felixstowe station and local shops. At 434 sq ft the flat offers an open-plan living/kitchen with two dormer windows, a shower room and private entrance — ready to move into with new fixtures and finishes.
Practical features include UPVC double glazing, air‑source heating with radiators, a secure lock-up garage with power, bin and bike storage, and access to a communal garden. Broadband speeds are fast and mobile signal is excellent, useful for home working and streaming.
The layout suits a first-time buyer or couple seeking low-maintenance living close to transport links, supermarkets and the seafront. The building is newly renovated/new-build, so immediate major works are unlikely; the 149-year lease provides long-term ownership clarity.
Notable limitations: internal space is compact and some rooms have lowered/sloped ceilings because of dormer/attic layout, which reduces usable wall height. This is a leasehold property — buyers should confirm ground rent and service charge details. Council tax band is not yet provided.
1 bedroom flat for sale in Finsbury Court, Glenfield Avenue, Felixstowe, IP11 — £160,000 • 1 bed • 1 bath • 434 ft²
1 bedroom flat for sale in Finsbury Court, Glenfield Avenue, Felixstowe, IP11 — £175,000 • 1 bed • 1 bath • 500 ft²
1 bedroom ground floor flat for sale in Finsbury Court, Glenfield Avenue, Felixstowe, IP11 — £180,000 • 1 bed • 1 bath • 503 ft²
1 bedroom ground floor flat for sale in Finsbury Court, Glenfield Avenue, Felixstowe, IP11 — £175,000 • 1 bed • 1 bath • 503 ft²
1 bedroom flat for sale in Finsbury Court, Glenfield Avenue, Felixstowe, IP11 — £175,000 • 1 bed • 1 bath • 500 ft²
2 bedroom flat for sale in Horsley House, Felix Road, Felixstowe, IP11 — £157,500 • 2 bed • 1 bath • 539 ft²






















