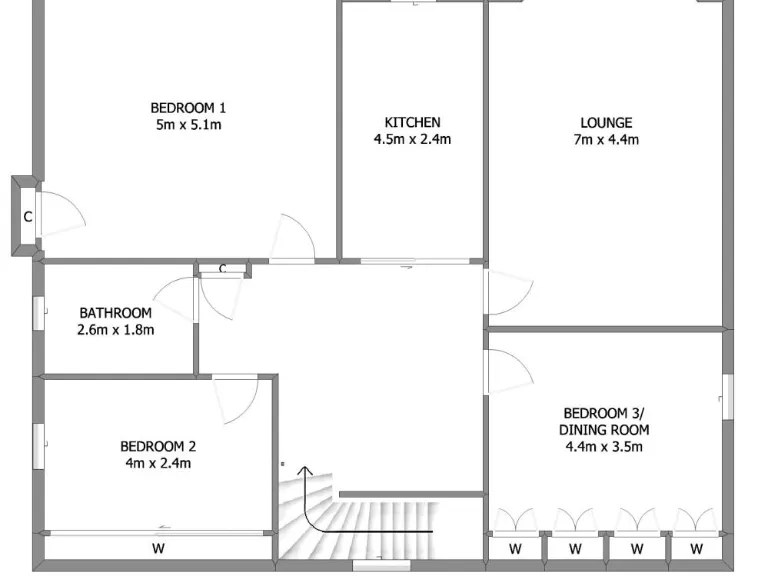
Impeccably renovated 3-bed sandstone upper flat with large private garden and parking..
Impressive upper conversion with high ceilings and original period features
Substantial private garden — predominantly for the upper flat
Re-fitted bespoke kitchen with integrated appliances and window seat
Luxury four-piece bathroom; three bedrooms served by one bathroom
Gated driveway and ample off-street parking for multiple vehicles
Floored attic accessed from kitchen — extra storage or conversion potential
Newly renovated, double glazing and gas central heating fitted
Tenure unknown and area classed as very deprived — buyers should check
This striking upper conversion occupies a commanding Victorian sandstone villa and combines original period character with high-spec modern upgrades. High ceilings, broad bay windows and decorative cornicing create an impressive living room, while a bespoke fitted kitchen and luxury four-piece bathroom add contemporary comfort.
The upper flat benefits from a substantial, mainly lawned private garden (largest portion belongs to the flat), gated driveway and off-street parking. A floored attic accessed via hatch provides valuable additional storage or conversion potential (subject to consents). Double glazing and gas central heating improve energy efficiency and day-to-day comfort.
Practical points to note: the property has three bedrooms but a single four-piece bathroom, tenure is currently unknown and buyers should confirm mortgage/insurance implications. The wider area is described as very deprived; however the location is quiet, convenient for Overtoun Park, local shops, schools and strong road and rail links into Glasgow.
This home will suit buyers seeking period character with turnkey presentation and outdoor space — families wanting generous rooms and gardens, or buyers planning light further adaptation. Verify tenure and local area considerations during viewing and conveyancing.
2 bedroom flat for sale in 105 Rosslyn Avenue, Rutherglen, , Glasgow, G73 — £150,000 • 2 bed • 1 bath • 756 ft²
2 bedroom apartment for sale in Belmont Drive, Rutherglen, G73 — £215,000 • 2 bed • 2 bath • 1195 ft²
2 bedroom flat for sale in 67 Ewing Street, Rutherglen, Glasgow, G73 — £185,000 • 2 bed • 1 bath • 1295 ft²
2 bedroom flat for sale in 57 Johnstone Drive, Rutherglen, Glasgow, G73 — £215,000 • 2 bed • 1 bath • 1118 ft²
3 bedroom flat for sale in Flat 20, Academy Gate, 2 Melrose Avenue, Rutherglen, Glasgow, G73 — £239,999 • 3 bed • 2 bath • 1184 ft²
3 bedroom terraced house for sale in 25 Watson Avenue, Rutherglen, Glasgow, G73 2NL, G73 — £279,000 • 3 bed • 2 bath • 1367 ft²










































































































































































