DE56 0SX - Land for sale in Belper Road, Holbrook, Belper, DE56

View on Property Piper

Land for sale in Belper Road, Holbrook, Belper, DE56

Summary - VENTURE GARAGE LTD, BELPER ROAD DE56 0SX

1 bed 1 bath Land

**Key Features:**

- Prime development opportunity in sought-after Holbrook village
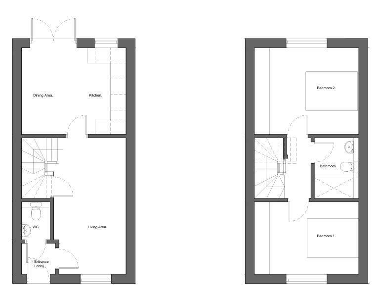
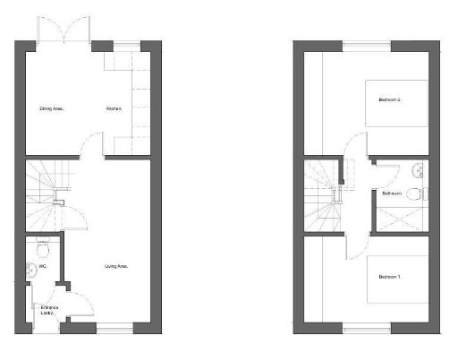
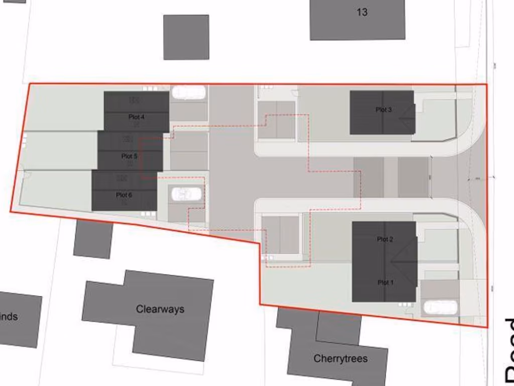
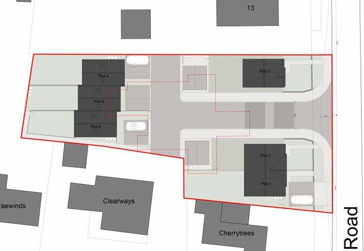
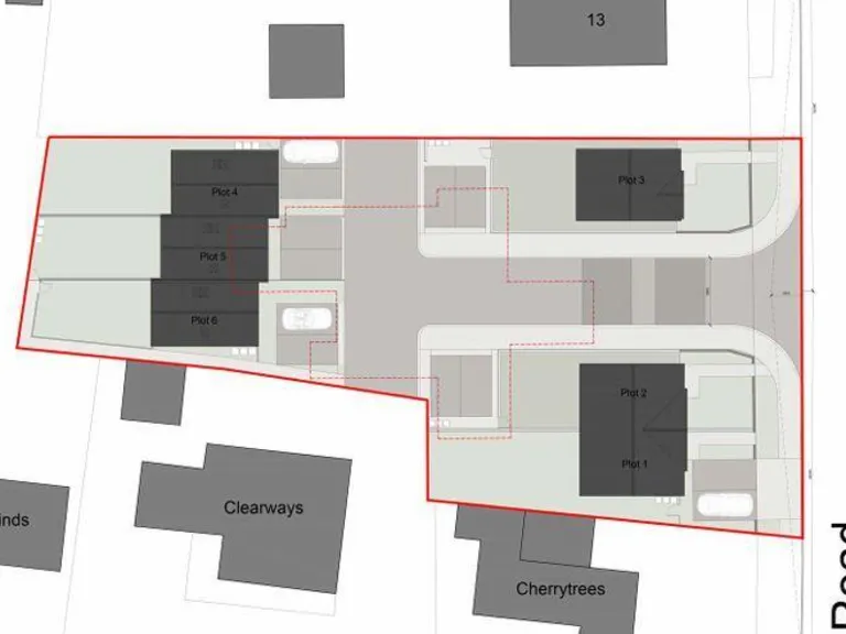
- Planning permission granted for demolition and construction of six new dwellings
- Freehold tenure ensures full ownership and flexibility in development
- Very low crime rate in an affluent, family-friendly area
- Excellent mobile signal and average broadband speeds
- Proximity to highly-rated schools, ideal for families
- Walkable amenities within 250m including shops, a garage, and recreational facilities

**Summary:**

Seize this exceptional opportunity to invest in a prime plot of land on Belper Road in the desirable village of Holbrook, Belper. With planning permission already approved for the demolition of current structures and the construction of six new dwellings, this site offers remarkable potential for both investors and developers. Nestled in a vibrant community characterized by quiet residential living, this property is just a short walk away from essential amenities, including local shops, a bus stop, and recreational options.

Holbrook is not only a tranquil village but also boasts an excellent local school system, with multiple "Good" rated state-funded primary and secondary schools nearby—making it an appealing location for families. Enjoy the luxury of freehold ownership, providing flexibility for development while benefiting from a very low crime rate in an affluent area. Whether you're looking to build sustainable homes or townhouses that meet modern living needs, this land provides a blank canvas with endless possibilities. Don't miss out on this rare opportunity to make your mark in Holbrook—act quickly, as this sought-after location won't be available for long!

Property Details

Brochure Descriptions

Image Descriptions

Textual Property Features

Detected Visual Features

Nearby Schools

Nearest Bars And Restaurants

,,,,}

Nearest General Shops

,,}

Nearest Grocery shops

,,}

Nearest Supermarkets

,,}

Nearest Religious buildings

,,}

Nearest Medical buildings

,,,}

Nearest Airports

}

Nearest Leisure Facilities

,,,,}

Nearest Tourist attractions

,,}

Nearest Train stations

,,,,}

Nearest Bus stations and stops

,,,,}

Nearest Hotels

,,}

Tags

Local Market Stats

Similar Properties

Meta

High Res Images

Compatible Images

Low res Images

Thumbnails

Raw Images