Characterful three-bedroom home offering renovation potential in a peaceful national park hamlet.
- Picturesque Exmoor village setting with East Lyn River views
- Victorian character: sash windows, gables and feature fireplace
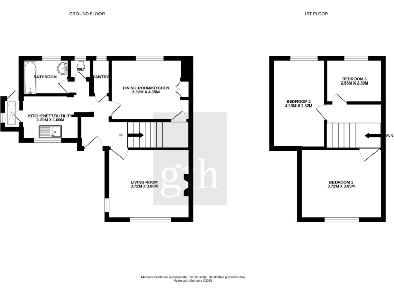
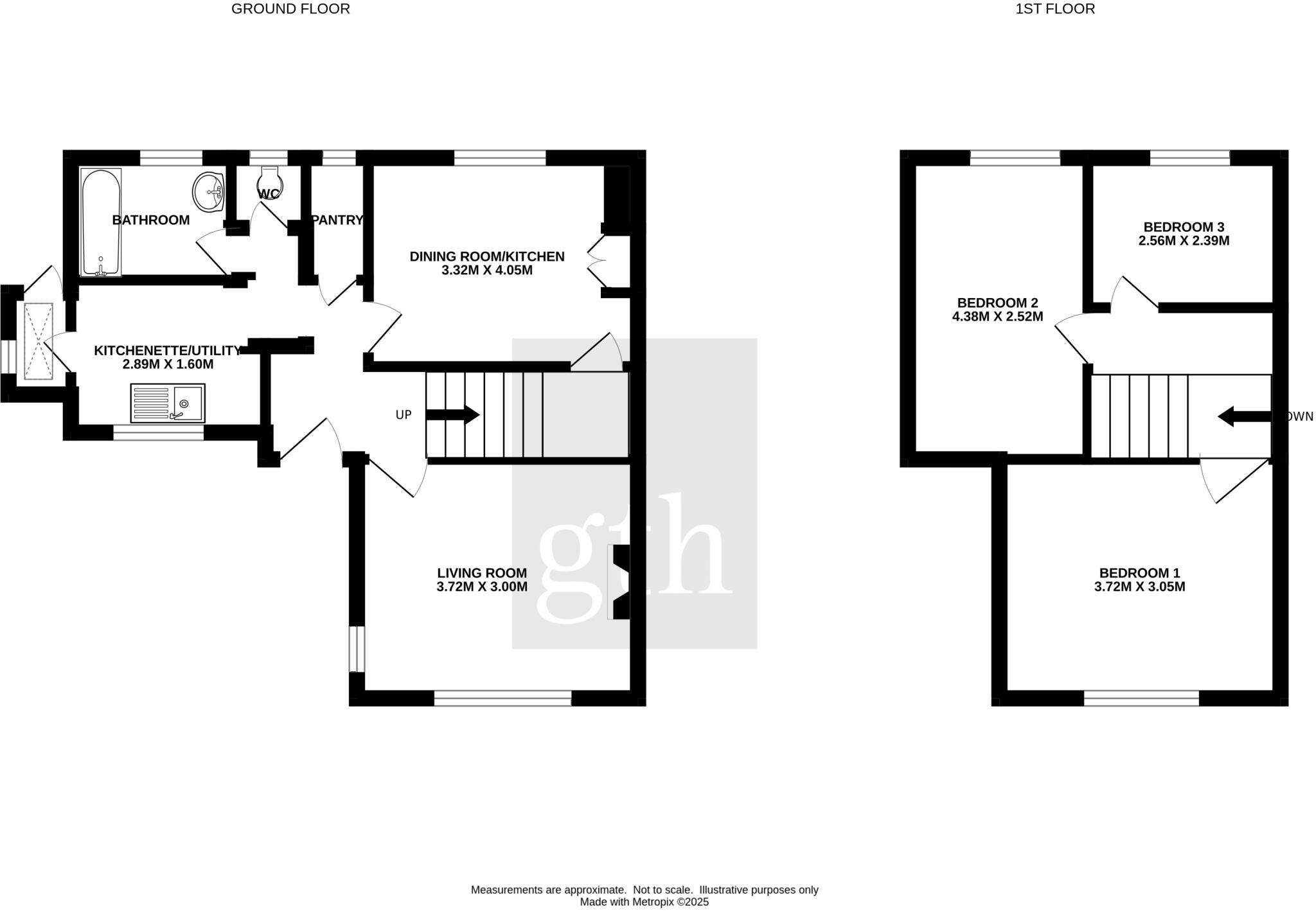
- Three bedrooms, two reception rooms, compact 671 sq ft
- Requires renovation throughout; modernisation needed
- Private drainage via septic tank; night storage heating
- High flooding risk — obtain specialist advice and insurance
- Very slow broadband and no mobile signal onsite
- Small enclosed garden with off‑street parking and shed
Idyll Cottage is a traditional Victorian semi detached home set in the heart of Brendon, within Exmoor National Park. The house offers charming period features, riverside and countryside views, off‑street parking and a small, enclosed garden — a rare combination in this peaceful hamlet. Sold freehold and chain free, it will appeal to buyers seeking a character home in a protected rural setting.
The property requires renovation throughout: modernisation is needed, heating is by night storage heaters and drainage is via a private septic tank. Broadband is very slow and there is no mobile signal, so buyers should plan for connectivity upgrades if working from home. Flooding risk has been recorded as high, so specialist advice and insurance checks are essential before purchase.
Accommodation is compact (approximately 671 sq ft) with three bedrooms, two reception rooms and a single bathroom. The layout and solid traditional construction offer good scope for sympathetic refurbishments to improve energy efficiency and modern living. Off‑street parking and a riverside garden add practical convenience and amenity.
This cottage suits downsizers or buyers seeking a second home or renovation project in a highly desirable National Park location. Be realistic about ongoing maintenance, limited services and the need for improvements to heating, electrics and connectivity before moving in.
3 bedroom semi-detached house for sale in Brendon, Lynton, EX35 — £399,950 • 3 bed • 1 bath • 1267 ft²
4 bedroom detached house for sale in Brendon, Lynton, EX35 — £625,000 • 4 bed • 2 bath • 2404 ft²
3 bedroom detached house for sale in Brendon, Lynton, EX35 — £515,000 • 3 bed • 2 bath • 1718 ft²
3 bedroom detached house for sale in Barbrook, Lynton, Devon, EX35 — £399,950 • 3 bed • 1 bath • 1133 ft²
3 bedroom semi-detached house for sale in Simonsbath, Minehead, TA24 — £439,950 • 3 bed • 1 bath • 1640 ft²
8 bedroom detached house for sale in Brendon, Lynton, EX35 — £950,000 • 8 bed • 4 bath • 2787 ft²


































































