Newly modernised starter house with parking and a large rear garden.
Three bedrooms with generous master and built-in wardrobes
Modern fitted kitchen/diner replaced recently
Driveway parking for two cars off-street
Generous rear garden, mostly lawn with decking ends
Newly renovated throughout; minimal cosmetic work needed
Heating via electric storage heaters — potentially higher running costs
Small plot typical of mid-terrace housing
Freehold; single bathroom only
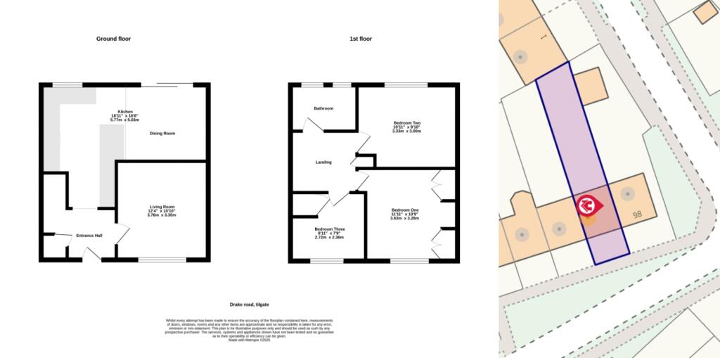
Step inside this well-presented three-bedroom terraced home in Tilgate, Crawley — newly renovated and ready to move into. The ground floor offers a cosy living room leading to a modern kitchen/diner that comfortably fits a four-seat table and opens to a generous rear garden. Driveway parking for two cars is a practical bonus for commuters or small families.
Upstairs, the master bedroom is a generous double with built-in wardrobes, joined by two further bedrooms and a single family bathroom. The property’s recent modernisation means fixtures and finishes are up to date, making it an appealing first or second home with minimal immediate work required.
Practical considerations: heating is via electric storage heaters, which can be more expensive than gas alternatives, and the plot is relatively small as typical for mid-terrace housing. The wider area is mixed and described as having a higher proportion of social renting and young families, which may influence community feel and future resale dynamics.
Overall this freehold, average-sized property offers straightforward living, good local schools within walking distance, fast broadband and excellent mobile signal — a sensible choice for first-time buyers or buyers seeking a low-maintenance, modern starter home with scope to personalise the garden further.
3 bedroom semi-detached house for sale in Bligh Close, Crawley, RH10 — £475,000 • 3 bed • 1 bath • 929 ft²
3 bedroom terraced house for sale in Steyning Close, Crawley, RH10 — £400,000 • 3 bed • 1 bath • 923 ft²
3 bedroom terraced house for sale in Mitford Walk, Crawley, RH11 — £350,000 • 3 bed • 1 bath • 1037 ft²
3 bedroom terraced house for sale in Gainsborough Road, Crawley, RH10 — £415,000 • 3 bed • 1 bath • 1019 ft²
3 bedroom terraced house for sale in Terry Road, Crawley, RH11 — £325,000 • 3 bed • 1 bath • 994 ft²
3 bedroom terraced house for sale in Hickling Walk, Crawley, RH10 — £300,000 • 3 bed • 1 bath • 869 ft²


















































